Omakotitalo, Täysikuu 2
96190 Rovaniemi, Vennivaara
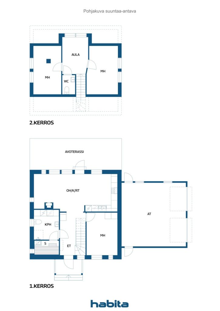
Lähes käyttämätön Älvsbytalon esittelykoti odottaa uusia asukkaitaan kauniilla ja rauhallisella alueella. Valo tulvii sisään isoista ikkunoista ja korostaa kodin raikasta, modernia ilmettä. Avara tupakeittiö ja olohuone muodostavat lämpimän keskipisteen arkeen ja juhlaan, ja tilava pohjaratkaisu tarjoaa kolmen makuuhuoneen verran väljyyttä ja toimivuutta.
Kodin harmoninen tunnelma jatkuu yläkerran aulaan, joka avautuu rauhalliseksi oleskelunurkkaukseksi tai etätyötilaksi.
Arkeaan helpottamaan saat myös käytännöllisen, suoraan taloon kytkeytyvän autotallin, joka viimeistelee tämän kokonaisuuden.
Myyntihinta
345 000 €Huoneet
4Makuuhuoneet
3Kylpyhuoneet
1Asuintilojen pinta-ala
91 m²Perustiedot
| Kohdenumero | 671284 |
|---|---|
| Myyntihinta | 345 000 € |
| Huoneet | 4 |
| Makuuhuoneet | 3 |
| Kylpyhuoneet | 1 |
| WC:t | 2 |
| Kylpyhuoneet joissa WC | 1 |
| Asuintilojen pinta-ala | 91 m² |
| Pinta-alat yhteensä | 128.8 m² |
| Muiden tilojen pinta-ala | 37.8 m² |
| Asuintilat luettelona | makuuhuone x3, olohuone, tupakeittiö, eteinen, pesuhuone, sauna, wc, aula |
| Muut tilat luettelona | autotalli |
| Pinta-alan lisätiedot | Pinta-ala perustuu rakennuspiirustukseen |
| Tarkistusmitattu | Ei |
| Pinta-alan peruste | Rakennuspiirustus |
| Kerros | 1 |
| Huoneiston kerrosten määrä | 2 |
| Yleiskunto | Hyvä |
| Pysäköinti | Pihapaikka, Autotalli |
| Tilat |
Makuuhuone Makuuhuone Makuuhuone Tupakeittiö Olohuone Eteinen WC Kylpyhuone Sauna Autotalli |
| Säilytystilat | Komero/komeroita |
| Teleliikenneyhteydet | Antenni |
| Lattian pintamateriaalit | Laminaatti |
| Seinien pintamateriaalit | Maali |
| Keittiön varustus | Induktioliesi, Jääkaappipakastin, Kaapisto, Liesituuletin, Astianpesukone, Erillisuuni, Mikroaaltouuni |
| Kylpyhuoneen varustus | Suihku, Pesukone, Mukavuuslattialämmitys, Kaapisto, Allas, Suihkuseinä, WC-istuin, Peilikaappi |
| Kuvaus | 3mh, tupak.,aula,kph,s |
Rakennuksen ja kiinteistön tiedot
| Rakennusvuosi | 2023 |
|---|---|
| Käyttöönotto | 2023 |
| Kerroksia | 2 |
| Hissi | Ei |
| Kattotyyppi | Harjakatto |
| Ilmanvaihto | Koneellinen |
| Energiatodistuksen luokka | B, 2018 |
| Lämmitysmuoto | Uuni- tai takkalämmitys, Patteri, Vesikiertoinen lattialämmitys, Poistoilmalämpöpumppu |
| Rakennusmateriaalit | Puu |
| Kattomateriaalit | Pelti |
| Kiinteistötunnus | 698-10-280-8 |
| Tontin pinta-ala | 1214 m² |
| Rakennuksia | 2 |
| Maasto | Tasainen |
| Tie | Kyllä |
| Tontin omistajuus | Vuokra |
| Tontin omistaja | Rovaniemen Kaupunki |
| Vuosivuokra | 767,95 € |
| Vuokrasopimuksen päättymispäivä | 31.7.2083 |
| Kaavoitustilanne |
Asemakaava
Lisätietoja Rovaniemen Kaupunki p. (016) 322 2000 |
| Rakennusoikeudet |
303.5 m²
Rakennusoikeudesta käytetty 147m² |
| Liittymät | Vesi, Viemäri, Sähkö |
Energiatodistuksen luokka
Kuukausimaksut
| Vesi |
25 € / kuukausi
/ henkilö (arvio)
Vesimaksu kulutuksen mukaan. Neven hinnaston mukaiset maksut alkaen 1.1.2026. Vesi 2,44e/m³ ja jätevesi 3,59e/m³. Perusmaksu 371,16 e/v |
|---|---|
| Sähkö |
100,84 € / kuukausi
(arvio)
Euromääräinen arvio perustuu energiatodistuksen laskennalliseen kulutukseen asuintilojen osalta (9309kwh/v). Arvio laskettu sähkön hinnalla 13s/kwh (7s/kwh sähkö ja 6s/kwh sähkön siirto) |
Kaupan laillistamiskustannukset
| Varainsiirtovero |
3 %
Ostaja vastaa varainsiirtoverosta |
|---|---|
| Rekisteröintimaksut |
172 € Ostajaa vastaa vuokraoikeuden kirjaamisen kustannuksista. |
Näin asunnon ostaminen alkaa.
- Täytä lyhyt lomake, niin sovimme tapaamisen.
- Välittäjämme ottaa sinuun yhteyttä viipymättä ja sovitaan aika asuntonäytölle.
Haluaisitko tietää lisää tästä kohteesta?
Kiitos yhteydenotosta. Otamme sinuun pian yhteyttä.