Rivitalo, Vuorsotie 4
99130 Sirkka, Levi
Kelo tuo tähän huoneistoon Lapin tunnelman. Makuupaikkoja huoneistosta löytyy yhteensä kuudelle hengelle. Loistava sijainti lähellä keskustaa ja latuja. Tässä huoneistossa vietät Levin lomia
kahdeksan viikkoa vuodessa ympäri vuoden, hallintaviikot: 2, 3, 11, 19, 20, 21, 33, 46 - vaihtopäivä lauantai. Lemmikit ovat huoneistoon sallittuja.
Velaton myyntihinta
20 000 €Huoneet
2Makuuhuoneet
1Kylpyhuoneet
1Asuintilojen pinta-ala
47 m²Perustiedot
| Kohdenumero | 670443 |
|---|---|
| Velaton myyntihinta | 20 000 € |
| Myyntihinta | 20 000 € |
| Huoneet | 2 |
| Makuuhuoneet | 1 |
| Kylpyhuoneet | 1 |
| WC:t | 1 |
| Kylpyhuoneet ilman WC:tä | 1 |
| Asuintilojen pinta-ala | 47 m² |
| Pinta-alat yhteensä | 62 m² |
| Muiden tilojen pinta-ala | 15 m² |
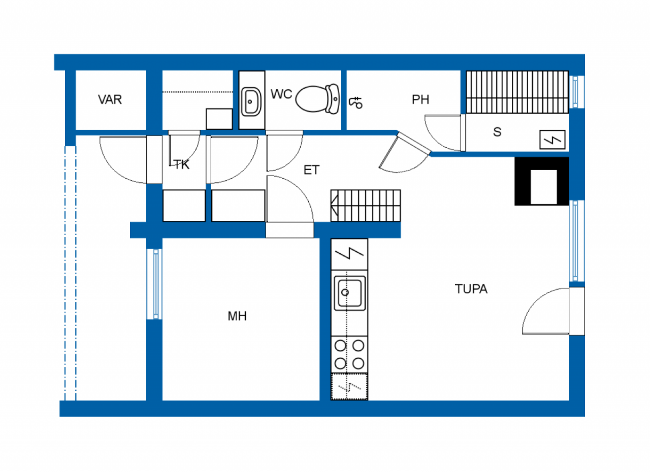
| Asuintilat luettelona | tupakeittiö, mh, kph, s, WC, pyykin- / vaatteiden kuivatustila |
| Muut tilat luettelona | parvi |
| Tarkistusmitattu |
Ei
Pinta-alatieto perustuu yhtiöjärjestykseen. Tämän ikäisissä yhtiöissä pinta-alaa ei ole mitattu nykyisin käytettävän huoneistoalan mittausmenetelmän mukaisesti. Tämän vuoksi ilmoitettu pinta-ala saattaa poiketa merkittävästikin tämän hetken mittausmenetelmien mukaisesta todellisesta huoneistoalasta ja asuinpinta-alasta. |
| Pinta-alan peruste | Yhtiöjärjestys |
| Kerros | 1 |
| Huoneiston kerrosten määrä | 2 |
| Yleiskunto | Hyvä |
| Pysäköinti | Parkkipaikka sähköpistokkeella |
| Vapaa-ajan asunto | Kyllä |
| Ominaisuudet | Kalustettu, Triplaikkunat, Ilmalämpöpumppu, Takka, Lämminvesivaraaja |
| Tilat |
Makuuhuone: Tilava makuuhuone, lisää makuutilaa parvella. Yhteensä huoneistossa makuutilat viidelle hengelle. Tupakeittiö: Tilaa oleskeluun ja ruokailuun, tunnelmanluojana takka. WC: Erillinen WC Kylpyhuone: Saunan yhteydessä suihkutila Sauna: Sähkösauna Kodinhoitohuone: Vaatteiden kuivatustila, jossa pyykinpesukone Ulkovarasto: Huoneiston sisäänkäynnin vieressä ulkovarasto harrastusvälineille |
| Näkymät | Oma piha, Metsämaisema |
| Säilytystilat | Kaapisto, Ulkovarasto |
| Teleliikenneyhteydet | Kaapelitelevisio |
| Lattian pintamateriaalit | Parketti, Laatta |
| Seinien pintamateriaalit | Puu, Hirsi |
| Kylpyhuoneen pintamateriaalit | Laatta |
| Keittiön varustus | Sähköliesi, Jääkaappi, Kaapisto, Liesituuletin, Astianpesukone, Mikroaaltouuni |
| Kylpyhuoneen varustus | Suihku |
| Kodinhoitohuoneen varustus | Pesukone |
| Tarkastukset | Kuntoarvio (17.9.2024), Kiinteistön huolenpitotarkastusraportti, Anticimex |
| Asbestikartoitus | Rakennus on rakennettu ennen vuotta 1994 eikä asbestikartoitusta ole tehty. |
| Osakenumerot | B54,B55,B63,B71,B72,B73,B85,B98 |
Rakennuksen ja kiinteistön tiedot
| Rakennusvuosi | 1990 |
|---|---|
| Käyttöönotto | 1990 |
| Kerroksia | 1 |
| Hissi | Ei |
| Kattotyyppi | Harjakatto |
| Ilmanvaihto | Koneellinen poistoilma |
| Perustukset | Betoni |
| Energiatodistuksen luokka | Laki ei edellytä energiatodistusta |
| Lämmitysmuoto | Sähkölämmitys, Patteri, Lattialämmitys, Ilmalämpöpumppu, Kattolämmitys |
| Rakennusmateriaalit | Betoni, Hirsi |
| Kattomateriaalit | Huopa |
| Julkisivun materiaalit | Puu |
| Remontit |
Muu 2025 (Tehty), Tehtiin kaikkiin huoneistoihin hätäpoistumistiet, uusittiin B- ja C-huoneistojen ilmalämpöpumput Korjaussuunnitelma 2025 (Tehty), Kunnossapitotarveselvitys vuosille 2026-2030 Katto 2025 (Tehty), Vesikatteen sammaleenpoistokäsittely Muu 2024 (Tehty), Tarkistettiin ovien ja ikkunoiden painumisvaroja, ei välitöntä korjaustarvetta Muu 2023 (Tehty), Saunojen sisäpintojen saneeraus A,B ja C. Uusittiin seinä- ja kattopinnat, lauteet, kiukaat ja valaistus. Lämminvesivaraajan uusinta A,B,C. ILP:n uusinta A. Muu 2022 (Tehty), Uudet runkopatjasängyt makuuhuoneisiin A,B,C Muu 2021 (Tehty), Suihkuseinäkkeet A,B,C Muu 2020 (Tehty), Sähköjohtojen, lämmityksen ja laitteiden toimivuuden tarkastus A,B,C, uudet käsisammuttimet. Ilmanvaihto 2019 (Tehty), Ilmastointiputkien puhdistus Muu 2018 (Tehty), Valaistus uusittu kaikissa huoneistoissa Muu 2017 (Tehty), Syöksytorvien 2 kpl lisäys takapihan puoleiseen kouruun Muu 2015 (Tehty), Takaterassin laudoitus/huoneistojen väliaidat Muu 2014 (Tehty), Takapihalle johtavat terassin portaat, kiuas A Muu 2013 (Tehty), Takapihan puoleinen räystäskouru, savupiippujen ulkopuolen pellitys Katto 2012 (Tehty), Ulkokaton huopakate uusittiin kummankin lappeen osalta ja asennettiin aluskate Muu 2011 (Tehty), Terassin kelopuinen kaide ja ränneihin toinen syöksytorvi Muu 2009 (Tehty), Ilmalämpöpumput ja vaahtosammuttimet Muu 2008 (Tehty), C-huoneiston saunan, perushuoneen ja wc:n peruskorjaus, keittiöiden kiintokalusteet ja keittiökoneet Muu 2007 (Tehty), A ja B -huoneitojen saunojen, pesuhuoneiden ja wc:iden peruskorjaus, lämminvesivaraaja A ja C, parkettien vaihto A,B, A-ja B-huoneistoissa KPH:n ja WC:den alueen vesivahinko, kuivattu ja korjattu. Muu 2006 (Tehty), Kiinteät, seinämalliset sähköpatterit tupakeittiöihin ja makuuhuoneisiin, A,B,C, tuulikaapin lattian laatoitus A,B,C, lämminvesivaraaja B, Ulko-ovet 2001 (Tehty), Ulko-ovien uusiminen v. 2001-2004 Muu 2000 (Tehty), A-ja B-huoneistojen väliseinän panelointi äänieristyksen parantamiseksi Katto 2000 (Tehty), Takalappeen katon uusiminen, eristyksen ja tuuletuksen lisääminen kondensaatio-ongelman korjaamiseksi. |
| Kiinteistötunnus | 261-409-29-174 |
| Isännöitsijä | Antero Nikki |
| Isännöitsijän yhteystiedot | 0500477814 |
| Huolto | Huoltoyhtiö |
| Tontin pinta-ala | 1414 m² |
| Rakennuksia | 1 |
| Maasto | Tasainen |
| Tie | Kyllä |
| Tontin omistajuus | Oma |
| Kaavoitustilanne |
Asemakaava
Lisätietoja Kittilän kunta 0400356500 |
| Liittymät | Vesi, Viemäri, Sähkö |
Yhtiön tiedot
| Yhtiön nimi | Kiinteistö Oy Levin Kirakka |
|---|---|
| Perustamisvuosi | 1989 |
| Osakkeiden lukumäärä | 156 |
| Huoneistojen lkm | 3 |
| Huoneistojen pinta-ala | 141 m² |
| Lunastusoikeus | Ei |
Palvelut
| Ruokakauppa | 1.4 km |
|---|---|
| Ravintola | 1.2 km |
| Laskettelu | 1.5 km |
Liikenneyhteydet
| Bussi | 0.3 km |
|---|---|
| Lentokenttä | 15 km |
Kuukausimaksut
| Hoitovastike |
1 640 € / vuosi
v.2025, kattaa huoneiston kaikki käyttökulut. Lisäksi peritty v.2025 ylimääräisen vastikkeen 720 €, jolla on katettu varauloskäynnin rakentamiset, ILP:n ja APK:n uusimiset. Myyjä on maksanut vuoden 2025 vastikkeet. |
|---|
Kaupan laillistamiskustannukset
| Varainsiirtovero | 1,5 % |
|---|
Näin asunnon ostaminen alkaa.
- Täytä lyhyt lomake, niin sovimme tapaamisen.
- Välittäjämme ottaa sinuun yhteyttä viipymättä ja sovitaan aika asuntonäytölle.
Haluaisitko tietää lisää tästä kohteesta?
Kiitos yhteydenotosta. Otamme sinuun pian yhteyttä.