Omakotitalo, Lavanmäentie 2
16600 Järvelä, Lavanmäki
Kaunis ja modernisoitu koti Järvelässä – täydellinen valinta perheelle tai rauhaa arvostavalle!
Myynnissä upea, vuonna 2021-2022 laajasti saneerattu ja modernisoitu kaksikerroksinen koti Järvelässä, joka tarjoaa täydelliset puitteet vaativampaankin makuun. Tämä 80-luvulla valmistunut talo on saanut niin ulkoisesti kuin sisäisesti tyylikkään ja käytännöllisen ilmeen.
Talo kätkee sisäänsä muun muassa kolme tilavaa makuuhuonetta, suuren ja toimivan keittiön, kaksi erillistä wc:tä sekä modernin kylpyhuoneen ja saunatilat. Koti on täysin muuttovalmis ja sopii erinomaisesti perheelle, joka arvostaa arjessaan myös ripauksen luksusta.
Suojaisa ja aurinkoinen tontti tarjoaa tilaa nauttia ulkoilmasta ja takapihan suuntaan avautuva terassi on täydellinen paikka kesäiltojen viettoon isommankin väen kesken. Tämä on loistava vaihtoehto lapsiperheelle tai kaikille, jotka arvostavat omaa tilaa ja rauhaa, mutta silti hyviä kulkuyhteyksiä lähellä. Lahteen on matka vaivaton.
Asuminen on myös kustannustehokasta, sillä pääasiallinen lämmitysmuoto on puukattila vesikiertoisella lämmönjakojärjestelmällä, ja molemmista kerroksista löytyy varaavat tulisijat. Lisäksi yläkerrasta löytyy ilmalämpöpumppu. Lämmitysjärjestelmä on vaivatonta vaihtaa vesi-ilmalämpöpumppuun.
Tämä koti on nähtävä paikan päällä – varaa oma esittelyaikasi ja anna sydämesi tälle kauniille kodille!
Myyntihinta
198 000 €Huoneet
5Makuuhuoneet
3Kylpyhuoneet
1Asuintilojen pinta-ala
199 m²Perustiedot
| Kohdenumero | 669776 |
|---|---|
| Myyntihinta | 198 000 € |
| Huoneet | 5 |
| Makuuhuoneet | 3 |
| Kylpyhuoneet | 1 |
| WC:t | 2 |
| Asuintilojen pinta-ala | 199 m² |
| Pinta-alat yhteensä | 264 m² |
| Muiden tilojen pinta-ala | 65 m² |
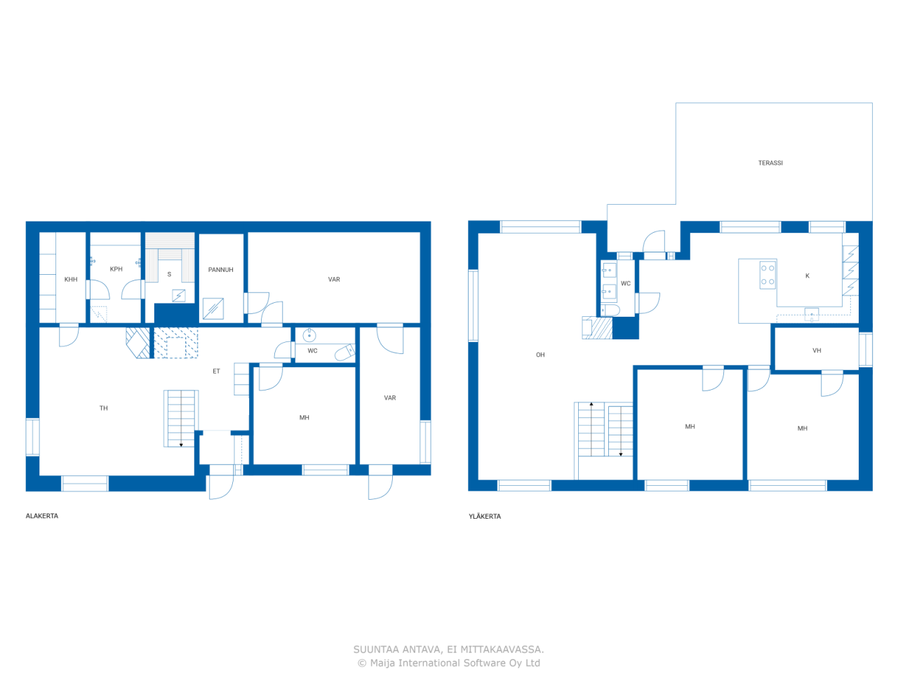
| Asuintilat luettelona | alakerta: 1 makuuhuone, takkahuone, kodinhoitohuone, kylpyhuone, wc, sauna ja yläkerta: 2 makuuhuonetta, keittiö, olohuone, wc, vaatehuone |
| Muut tilat luettelona | alakerta: varastot ja pannuhuone |
| Pinta-alan lisätiedot | Asuintilojen ja muiden tilojen pinta-alat perustuvat myyjän ilmoitukseen. Pinta-alat yhteensä ovat asuintilojen ja muiden tilojen pinta-ala yhteenlaskettuna. Tämän ikäisissä taloissa pinta-alaa ei ole mitattu nykyisin käytettävän mittausmenetelmän mukaisesti ja tämän vuoksi pinta-ala saattaa poiketa merkittävästikin tämän hetken mittausmenetelmien mukaisesta todellisesta pinta-alasta. |
| Tarkistusmitattu | Ei |
| Pinta-alan peruste | Omistajan ilmoitus |
| Kerros | 1 |
| Huoneiston kerrosten määrä | 2 |
| Yleiskunto | Hyvä |
| Vapautumispäivä | heti vapaa |
| Pysäköinti | Pihapaikka |
| Ominaisuudet | Triplaikkunat, Ilmalämpöpumppu, Takka, Lämminvesivaraaja |
| Tilat |
Sauna: tyylikäs sauna sähkökiukaalla alakerran kylpyhuoneen yhteydessä. Avokeittiö: moderni iso keittiö yläkerrassa joka soveltuu vaativampaankin makuun, astianpesukoneelle valmius. Makuuhuone: kolme makuuhuonetta, yksi alakerrassa ja kaksi yläkerrassa, jonka toisen makuuhuoneen yhteydessä pieni vaatehuone. Olohuone: yläkerrassa sijaitsee avara ja valoisa olohuone, jossa tilaa myös ruokailuryhmälle. Terassi: yläkerrasta kulku terassille, joka aukeaa suojaisan ja aurinkoisen takapihan suuntaan. Kylpyhuone: alakerrassa kylpyhuone jossa kaksi suihkua ja pesukoneliitäntä pyykinpesukoneelle. WC: kaksi erillistä wc:tä, yksi molemmissa kerroksissa. Eteinen Vaatehuone Kodinhoitohuone: kodinhoitohuone alakerrassa, kulku takkahuoneen kautta. Takkahuone: alakerrassa takkahuone jossa on talon toinen varaava takka sekä leivinuuni. |
| Näkymät | Piha, Takapiha, Oma piha, Naapurusto, Luonto |
| Säilytystilat | Kaapisto, Vaatehuone |
| Lattian pintamateriaalit | Laminaatti, Laatta |
| Seinien pintamateriaalit | Puu, Tapetti, Maali |
| Kylpyhuoneen pintamateriaalit | Laatta |
| Keittiön varustus | Keraaminen liesi, Jääkaappi, Pakastin, Kaapisto, Liesituuletin, Erillisuuni, Mikroaaltouuni |
| Kylpyhuoneen varustus | Suihku, Pesukoneliitäntä, Vesikiertoinen lattialämmitys, Tilaa pesukoneelle |
| Tarkastukset | Kuntoarvio (23.7.2021), Kiinteistön kuntotarkastus, PRO Kuntotarkastus, Mikko Vesa. |
| Asbestikartoitus | Rakennus on rakennettu ennen vuotta 1994 eikä asbestikartoitusta ole tehty. |
| Kuvaus | 5h, k, 2wc, kph/s, khh, terassi |
Rakennuksen ja kiinteistön tiedot
| Rakennusvuosi | 1981 |
|---|---|
| Käyttöönotto | 1985 |
| Kerroksia | 2 |
| Hissi | Ei |
| Kattotyyppi | Aumakatto |
| Ilmanvaihto | Painovoimainen |
| Perustukset |
Betoni
rakennus on perustettu betoninauha-anturan varaan, rakennuksen alapohja on maanvastainen alapuolelta EPS-eristeellä eristetty betonilaatta. |
| Energiatodistuksen luokka | E, 2018 |
| Lämmitysmuoto | Sähkölämmitys, Vesikiertoinen keskuslämmitys, Puu- ja/tai pellettilämmitys, Patteri, Ilmalämpöpumppu, Hake-, pilke- ja halkokattila |
| Rakennusmateriaalit | Tiili, Puu, Betoni |
| Kattomateriaalit | Betonitiili |
| Julkisivun materiaalit | Rappaus, Tiiliverhous |
| Remontit |
Lämmitys 2023 (Tehty), asennettu ilmalämpöpumppu Katto 2022 (Tehty), kattoremontti: asennettu uusi tiilikatto, vaihdettu myös aluskatteet ja rännit, piippu pellitetty Piha 2022 (Tehty), terassi rakennettu, piha siistitty ja tuija-aita istutettu kadun puolelle Muu 2021 (Tehty), 2021-2022 kiinteistön laaja saneeraus: ikkunoiden sisäpintojen maalaus, sisäkatot paneloitu ja valaisimet uusittu, vesieristetty sauna, kylpyhuone, wc:t ja kodinhoitohuone, kylpyhuone ja sauna saneerattu sekä kodinhoitohuone ja wc:t kaikkine pintoineen ja kalusteineen, asuinhuoneisiin asennettu uusi laminaattilattia ja seinät maalattu ja/tai tapetoitu, keittiö uusittu kauttaaltaan kalusteineen, yläkerran takka laatoitettu, sähköjohtoja uusittu osittain (ei pääkeskus), asennettu uusi lämminvesivaraaja |
| Kiinteistötunnus | 316-406-2-415 |
| Kiinteistövero vuodessa | 623,66 € |
| Rasitukset |
216 800 € 3 kpl sähköisiä panttikirjoja jotka vapautetaan ostajalle velattomina kaupan teossa |
| Tontin pinta-ala | 2657 m² |
| Rakennuksia | 1 |
| Maasto | Rinne |
| Tie | Kyllä |
| Tontin omistajuus | Oma |
| Kaavoitustilanne |
Asemakaava
Kärkölän kunta, 044 7702200 |
| Liittymät | Vesi, Viemäri, Sähkö |
Energiatodistuksen luokka
Palvelut
| Ruokakauppa |
2 km, S-market Järvelä |
|---|---|
| Koulu |
2.7 km, Kärkölän Yhtenäiskoulu (luokat 0-4 ja 5-9) |
| Päiväkoti |
3.4 km, Vuokkoharjun päiväkoti |
Liikenneyhteydet
| Juna |
2.3 km, Järvelän rautatieasema |
|---|
Kuukausimaksut
| Kiinteistövero |
623,66 € / vuosi
vuoden 2024 kiinteistövero, tarkistettu Verohallinnolta 029 497020 |
|---|---|
| Jätemaksu |
10 € / kuukausi
(arvio)
sekajäteastian tyhjennysmaksu, tyhjennys noin 6 vko välein |
| Lämmitys |
135 € / kuukausi
(arvio)
noin 10m³ polttopuita on ollut noin 800€ 6kk ajanjaksolla |
| Vesi |
20 € / kuukausi
(arvio)
hinta arvioitu Kärkölän veden hinnaston mukaan, mutta veden kulutus on ollut noin 10m³/6 hlö/kuukausi |
Kaupan laillistamiskustannukset
| Varainsiirtovero |
3 %
ostaja maksaa varainsiirtoveron |
|---|---|
| Muut kulut |
160 € (Arvio) kaupanvahvistajan palkkio, ostaja ja myyjä maksavat puoliksi |
| Rekisteröintimaksut |
172 € lainhuuto |
Näin asunnon ostaminen alkaa.
- Täytä lyhyt lomake, niin sovimme tapaamisen.
- Välittäjämme ottaa sinuun yhteyttä viipymättä ja sovitaan aika asuntonäytölle.
Haluaisitko tietää lisää tästä kohteesta?
Kiitos yhteydenotosta. Otamme sinuun pian yhteyttä.