Menu Menu
Close

Search by reference number

Condominium, MANTA LIVIN Uluwatu

80362 Kuta, Pecatu

Swell Apartament

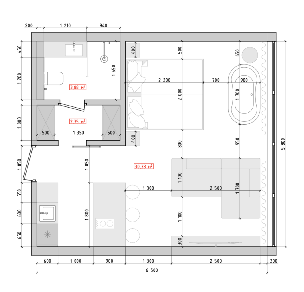
The Swell apartment was created for a unique experience and is ideal for couples or a honeymoon. This is an exclusive offer—there are only six such units in the entire complex.

Its main feature is a blue glass bathtub, centrally located in the room with an ocean view, which blurs the lines between the bedroom and relaxation area. The interior space is complemented by unique water patterns on the walls, created with 3DCP technology, while your comfort is ensured by pure water from a private well with an advanced filtration and ionization system. Unlike standard studios, this unit also has a full kitchen and a private balcony.

For investors, Swell is an incredibly profitable asset. Its exclusivity, limited availability, and focus on premium retreats for couples allow for a high rental rate. This provides the highest projected yield in the project, with an ROI of up to 16% per annum.

Guests of the apartment, located on a 198-meter cliff just 100 meters from the ocean, have access to the entire wellness infrastructure of the Manta Livin complex, which is built with combined technology by Legends 3D and BIMX. This includes a SPA center, Manta Pool Bar, restaurant, and 24/7 hotel service.

Selling price
$125,000 (€106,663)
Rooms
2
Bedrooms
1
Bathrooms
1
Living area
30 m²

Basic details

Listing number 669712
New construction Yes (Under construction)
Selling price $125,000 (€106,663)
Rooms 2
Bedrooms 1
Bathrooms 1
Toilets 1
Bathrooms with toilet 1
Living area 30 m²
Area of other spaces 8 m²
Measurements verified No
Measurements based on Building plan
Floor 1
Residential floors 5
Condition New
Vacancy from According to contract
Parking Parking space
Features Furnished, Air-conditioning, Central vacuum cleaner, Security system, Double glazzed windows, Boiler
Spaces Walk-in closet (Southwest)
Swimming pool (Southwest)
Balcony (Southwest)
Views Yard, Front yard, Garden, Nature, Swimming pool
Storages Cabinet, Wardrobe, Walk-in closet, Closet/closets
Telecommunications TV, Digital TV, Cable TV, Satellite TV, Internet, Optical fibre internet, Cable internet, Antenna
Floor surfaces Tile
Wall surfaces Paint
Bathroom surfaces Tile
Kitchen equipments Electric stove, Refrigerator, Freezer refrigerator, Cabinetry, Kitchen hood, Dishwasher, Microwave, Washing machine connection
Bathroom equipments Shower, Washing machine, Washing machine connection, Underfloor heating, Bidet shower, Cabinet, Sink, Shower wall, Toilet seat, Water boiler, Mirror, Mirrored cabinet, Shower stall, Bathtub
Utility room equipments Washing machine connection, Drying cabinet, Washing machine, Drying drum, Sink
Sold as rented Yes
Description An exclusive 38 m² studio apartment with a unique layout and a blue glass bathtub with an ocean view. There are only six such units in Manta Livin, a complex built with combined technology by Legends
Links

Building and property details

Construction started 2025
Construction year 2027
Inauguration 2027
Floors 1
Lift No
Roof type Flat roof
Ventilation Mechanical ventilation
Foundation Concrete
Energy certificate class Energy certificate is not required by law
Building materials Concrete
Roof materials Fiber cement
Facade materials Concrete
Common areas Equipment storage, Storage, Sauna, Technical room, Drying room, Cold cellar, Lobby, Swimming pool, Parking hall, Restaurant, Roof terrace, Laundry room
Terrain Flat
Water area Right to use shore / beach
Road Yes
Land ownership Own
Planning situation General plan

Services

Beach 5.2 km
https://maps.app.goo.gl/TKzSkVmTShc6YrmHA?g_st=com.google.maps.preview.copy  
Beach 8.2 km
https://maps.app.goo.gl/Wr8hQVmkK16cCTaG9  
Hospital 4.2 km
https://maps.app.goo.gl/DqTngtpMLxuzNV2h7?g_st=com.google.maps.preview.copy  
Shopping center 19 km
https://maps.app.goo.gl/FK78tD2TokzhTxRs6?g_st=com.google.maps.preview.copy  
Restaurant 4.6 km
https://maps.app.goo.gl/UH5CmJyrNSodPdvb8?g_st=com.google.maps.preview.copy  
Restaurant 6 km
https://maps.app.goo.gl/yUBa6WmWHhvLoK848?g_st=com.google.maps.preview.copy  
Restaurant 1.2 km
https://maps.app.goo.gl/eSFxUuX8cbAx4t7R8?g_st=com.google.maps.preview.copy  
City center 27 km
https://maps.app.goo.gl/hFpDFDEXn6nfDBFK8?g_st=com.google.maps.preview.copy  
Golf 7.4 km
https://maps.app.goo.gl/UYGTaV2Qjbnybhvc6?g_st=com.google.maps.preview.copy  
Tennis 6 km
https://maps.app.goo.gl/omDDebFFNj4sJtWA9?g_st=com.google.maps.preview.copy  

Monthly fees

Maintenance 2,000 $ / year (1,706.6 €)

Purchase costs

Transfer tax 10 %

This is how the buying of your property starts

  1. Fill out the short form and we will arrange a meeting
  2. Our representative will contact you without delay and arrage a meeting.

Would you like to know more about this property?

An error occurred while trying to send the contact request. Please try again.

Loading

Thank you for your contact request. We'll contact you promptly!