Menu Menu
Close

Search by reference number

Condominium, MANTA LIVIN Uluwatu

80362 Kuta, Pecatu

Seaborne Apartament

Situated on a 198-meter cliff, just 100 meters from the ocean, the Seaborne apartment is your private viewing deck for Bali's famous sunsets and a powerful tool for income generation.

The layout is meticulously designed so that every point in the unit—from the bed to the kitchen—offers a direct, panoramic view of the Indian Ocean. The interior space is complemented by unique water patterns on the walls, while the bathroom design creates a sense of complete immersion in water for a one-of-a-kind experience. Your comfort is ensured not only by premium finishes but also by crystal-clear water from a private well with its own filtration and ionization system.

For an investor, this view is the primary driver of income. The demand for units with panoramic views in Uluwatu is consistently high, ensuring a quick return on investment and a projected ROI of up to 15% per annum. Guests also have access to the full, technologically advanced wellness infrastructure of the Manta Livin complex, built using a combined technology by Legends 3D and BIMX. This includes a SPA center, Manta Pool Bar, restaurant, and full 24/7 hotel service, guaranteeing a premium experience for renters and a stable income for you.

Selling price
$95,000 (€81,799)
Rooms
2
Bedrooms
1
Bathrooms
1
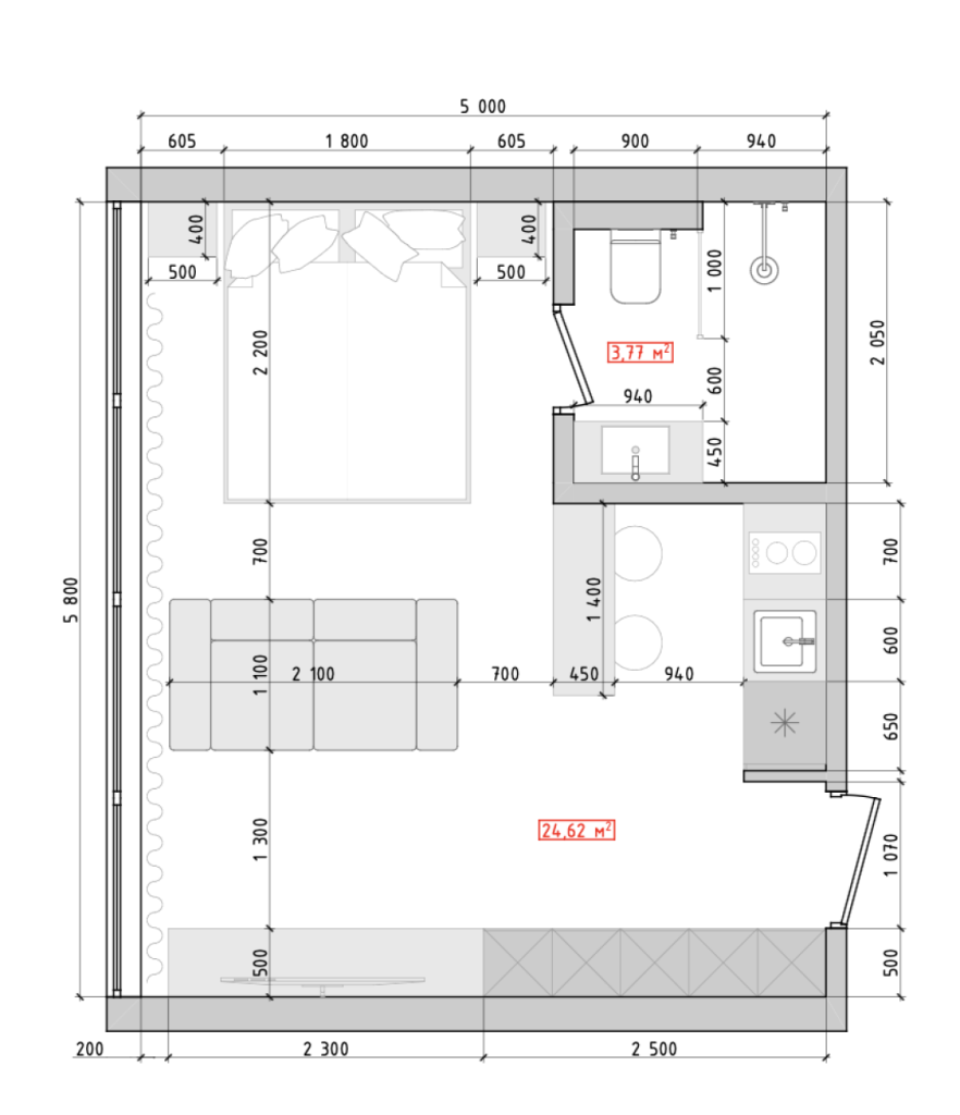
Living area
22 m²

Basic details

Listing number 669674
New construction Yes (Under construction)
Selling price $95,000 (€81,799)
Rooms 2
Bedrooms 1
Bathrooms 1
Toilets 1
Bathrooms with toilet 1
Living area 22 m²
Total area 30 m²
Area of other spaces 8 m²
Measurements verified No
Measurements based on Building plan
Floor 1
Residential floors 5
Condition New
Vacancy from According to contract
Parking Parking space
Is located on ground level Yes
Is located on highest floor Yes
Features Furnished, Air-conditioning, Security system, Double glazzed windows, Boiler
Spaces Balcony (Southwest)
Swimming pool (Southwest)
Views Garden, Sea, Nature
Storages Cabinet, Wardrobe, Closet/closets
Telecommunications TV, Digital TV, Cable TV, Satellite TV, Internet, Optical fibre internet, Cable internet, Antenna
Floor surfaces Tile
Wall surfaces Paint
Bathroom surfaces Tile
Kitchen equipments Electric stove, Refrigerator, Freezer refrigerator, Cabinetry, Kitchen hood, Microwave, Washing machine connection
Bathroom equipments Shower, Washing machine connection, Bidet shower, Cabinet, Sink, Shower wall, Toilet seat, Water boiler, Mirror, Mirrored cabinet, Shower stall
Utility room equipments Washing machine connection, Dish drying cabinet, Washing machine, Drying drum, Sink
Description A 30 m² studio apartment with a direct, panoramic ocean view from every point in the unit. Located within the Manta Livin complex, which is built using a combined technology by Legends 3D and BIMX. It
Links

Building and property details

Construction started 2025
Construction year 2027
Inauguration 2027
Floors 1
Lift No
Roof type Flat roof
Ventilation Mechanical ventilation
Foundation Concrete
Energy certificate class Energy certificate is not required by law
Building materials Concrete
Roof materials Fiber cement
Facade materials Concrete
Common areas Equipment storage, Storage, Sauna, Technical room, Drying room, Cold cellar, Lobby, Swimming pool, Parking hall, Restaurant, Roof terrace, Laundry room
Terrain Flat
Water area Right to use shore / beach
Road Yes
Land ownership Own
Planning situation General plan

Services

Beach 8.2 km
https://maps.app.goo.gl/Wr8hQVmkK16cCTaG9  
Hospital 4.2 km
https://maps.app.goo.gl/DqTngtpMLxuzNV2h7?g_st=com.google.maps.preview.copy  
Shopping center 19 km
https://maps.app.goo.gl/FK78tD2TokzhTxRs6?g_st=com.google.maps.preview.copy  
Restaurant 4.6 km
https://maps.app.goo.gl/UH5CmJyrNSodPdvb8?g_st=com.google.maps.preview.copy  
Restaurant 6 km
https://maps.app.goo.gl/yUBa6WmWHhvLoK848?g_st=com.google.maps.preview.copy  
Restaurant 1.2 km
https://maps.app.goo.gl/eSFxUuX8cbAx4t7R8?g_st=com.google.maps.preview.copy  
City center 27 km
https://maps.app.goo.gl/hFpDFDEXn6nfDBFK8?g_st=com.google.maps.preview.copy  
Golf 7.4 km
https://maps.app.goo.gl/UYGTaV2Qjbnybhvc6?g_st=com.google.maps.preview.copy  
Tennis 6 km
https://maps.app.goo.gl/omDDebFFNj4sJtWA9?g_st=com.google.maps.preview.copy  
Beach 5.2 km
https://maps.app.goo.gl/TKzSkVmTShc6YrmHA?g_st=com.google.maps.preview.copy  

Monthly fees

Maintenance 2,000 $ / year (1,722.08 €)

Purchase costs

Transfer tax 10 %

This is how the buying of your property starts

  1. Fill out the short form and we will arrange a meeting
  2. Our representative will contact you without delay and arrage a meeting.

Would you like to know more about this property?

An error occurred while trying to send the contact request. Please try again.

Loading

Thank you for your contact request. We'll contact you promptly!