Condominium, MANTA LIVIN Uluwatu
80362 Kuta, Pecatu
The Swell apartment was created for a unique experience and is ideal for couples or a honeymoon. This is an exclusive offer—there are only six such units in the entire complex.
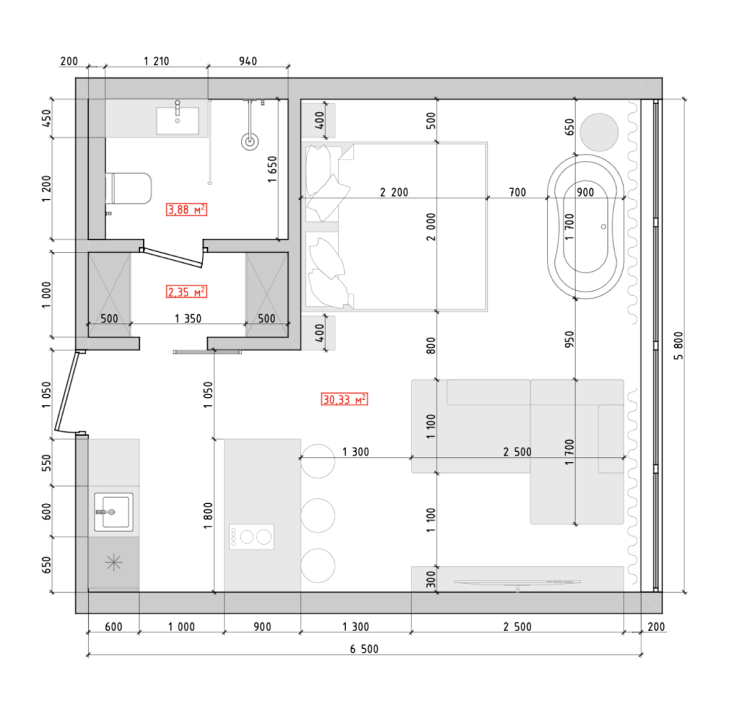
Its main feature is a blue glass bathtub, centrally located in the room with an ocean view, which blurs the lines between the bedroom and relaxation area. The interior space is complemented by unique water patterns on the walls, created with 3DCP technology, while your comfort is ensured by pure water from a private well with an advanced filtration and ionization system. Unlike standard studios, this unit also has a full kitchen and a private balcony.
For investors, Swell is an incredibly profitable asset. Its exclusivity, limited availability, and focus on premium retreats for couples allow for a high rental rate. This provides the highest projected yield in the project, with an ROI of up to 16% per annum.
Guests of the apartment, located on a 198-meter cliff just 100 meters from the ocean, have access to the entire wellness infrastructure of the Manta Livin complex, which is built with combined technology by Legends 3D and BIMX. This includes a SPA center, Manta Pool Bar, restaurant, and 24/7 hotel service.
Preț de vânzare
129.000 USD (566.645 RON)Camere
1Dormitoare
1Băi
1Zonă de locuit
39 m²Detalii de bază
| Numărul de listare | 669651 |
|---|---|
| Construcție nouă | Da (Under construction) |
| Preț de vânzare | 129.000 USD (566.645 RON) |
| Camere | 1 |
| Dormitoare | 1 |
| Băi | 1 |
| Toalete | 1 |
| Băi cu toaletă | 1 |
| Zonă de locuit | 39 m² |
| Suprafață totală | 42.4 m² |
| Zona altor spații | 8 m² |
| Măsurători verificate | Nu |
| Măsurători bazate pe | Building plan |
| Podea | 4 |
| Pardoseli rezidențiale | 5 |
| Stare | New |
| Post vacant de la | Conform contractului |
| Parcare | Parking space, Garaj, Parking garage |
| Caracteristici | Mobilat, Air-conditioning, Central vacuum cleaner, Security system, Double glazzed windows, Boiler |
| Spații |
Piscină (Southwest) Balcon (Southwest) Walk-in closet (Southwest) |
| Vizualizări | Front yard, Inner courtyard, Garden, Sea, Nature, Swimming pool, Park |
| Depozite | Cabinet, Wardrobe, Walk-in closet, Closet/closets |
| Telecomunicații | TV, Digital TV, Cable TV, Satellite TV, Internet, Optical fibre internet, Cable internet, Antenna |
| Suprafețe de podea | Tile, Wood, Concrete |
| Suprafețe de perete | Paint |
| Suprafețe de baie | Tile |
| Echipamente de bucătărie | Electric stove, Refrigerator, Freezer refrigerator, Cabinetry, Kitchen hood, Dishwasher, Microwave, Washing machine connection |
| Echipamente pentru baie | Shower, Washing machine, Washing machine connection, Underfloor heating, Bidet shower, Cabinet, Sink, Shower wall, Toilet seat, Water boiler, Mirror, Shower stall, Bathtub |
| Echipamente pentru camera utilitară | Washing machine connection, Dish drying cabinet, Washing machine, Drying drum, Sink |
| Descriere | An exclusive 39m² studio apartment with a unique layout and a blue glass bathtub with an ocean view. There are only six such units in Manta Livin, a complex built with combined technology by Legends |
| Linkuri |
Detalii despre clădire și proprietate
| Construcția a început | 2025 |
|---|---|
| Anul construcției | 2027 |
| Inaugurare | 2027 |
| Podele | 1 |
| Lift | Nu |
| Tipul de acoperiș | Flat roof |
| Ventilare | Mechanical ventilation |
| Fundaţie | Concrete |
| Clasa certificatului energetic | Certificatul energetic nu este obligatoriu prin lege |
| Materiale de construcție | Concrete |
| Materiale pentru acoperiș | Fiber cement |
| Materiale de fațadă | Concrete |
| Zone comune | Equipment storage, Storage, Sauna, Technical room, Drying room, Cold cellar, Lobby, Swimming pool, Parking hall, Restaurant, Roof terrace, Laundry room |
| Teren | Flat |
| Zona de apă | Right to use shore / beach |
| Drum | Da |
| Proprietatea funciară | Propriu |
| Situația de planificare | General plan |
Servicii
| Beach |
5.2 kilometri https://maps.app.goo.gl/TKzSkVmTShc6YrmHA?g_st=com.google.maps.preview.copy |
|---|---|
| Beach |
8.2 kilometri https://maps.app.goo.gl/Wr8hQVmkK16cCTaG9 |
| Hospital |
4.2 kilometri https://maps.app.goo.gl/DqTngtpMLxuzNV2h7?g_st=com.google.maps.preview.copy |
| Shopping center |
19 kilometri https://maps.app.goo.gl/FK78tD2TokzhTxRs6?g_st=com.google.maps.preview.copy |
| Restaurant |
4.6 kilometri https://maps.app.goo.gl/UH5CmJyrNSodPdvb8?g_st=com.google.maps.preview.copy |
| Restaurant |
6 kilometri https://maps.app.goo.gl/yUBa6WmWHhvLoK848?g_st=com.google.maps.preview.copy |
| Restaurant |
1.2 kilometri https://maps.app.goo.gl/eSFxUuX8cbAx4t7R8?g_st=com.google.maps.preview.copy |
| City center |
27 kilometri https://maps.app.goo.gl/hFpDFDEXn6nfDBFK8?g_st=com.google.maps.preview.copy |
| Golf |
7.4 kilometri https://maps.app.goo.gl/UYGTaV2Qjbnybhvc6?g_st=com.google.maps.preview.copy |
| Tennis |
6 kilometri https://maps.app.goo.gl/omDDebFFNj4sJtWA9?g_st=com.google.maps.preview.copy |
Acces la transportul public
| Airport |
18 kilometri https://maps.app.goo.gl/SBgprbjYxusN3hbJA?g_st=com.google.maps.preview.copy |
|---|---|
| Ferry |
20 kilometri https://maps.app.goo.gl/FGGffYj7Dw5TRauz5?g_st=com.google.maps.preview.copy |
Taxe lunare
| Maintenance | 2.000 $ / year (8.785,2 RON) |
|---|
Costuri de achiziție
| Transfer tax | 0,5 % |
|---|
Așa începe cumpărarea proprietății tale
- Completați formularul scurt și vom stabili o întâlnire
- Reprezentantul nostru vă va contacta fără întârziere și va programa o întâlnire.
Ați dori să aflați mai multe despre această proprietate?
Vă mulțumim pentru solicitarea dumneavoastră de contact. Vă vom contacta imediat!