Двосімейний будинок, Calle Dr. Waksman
03183 Torrevieja, Playa de los Locos
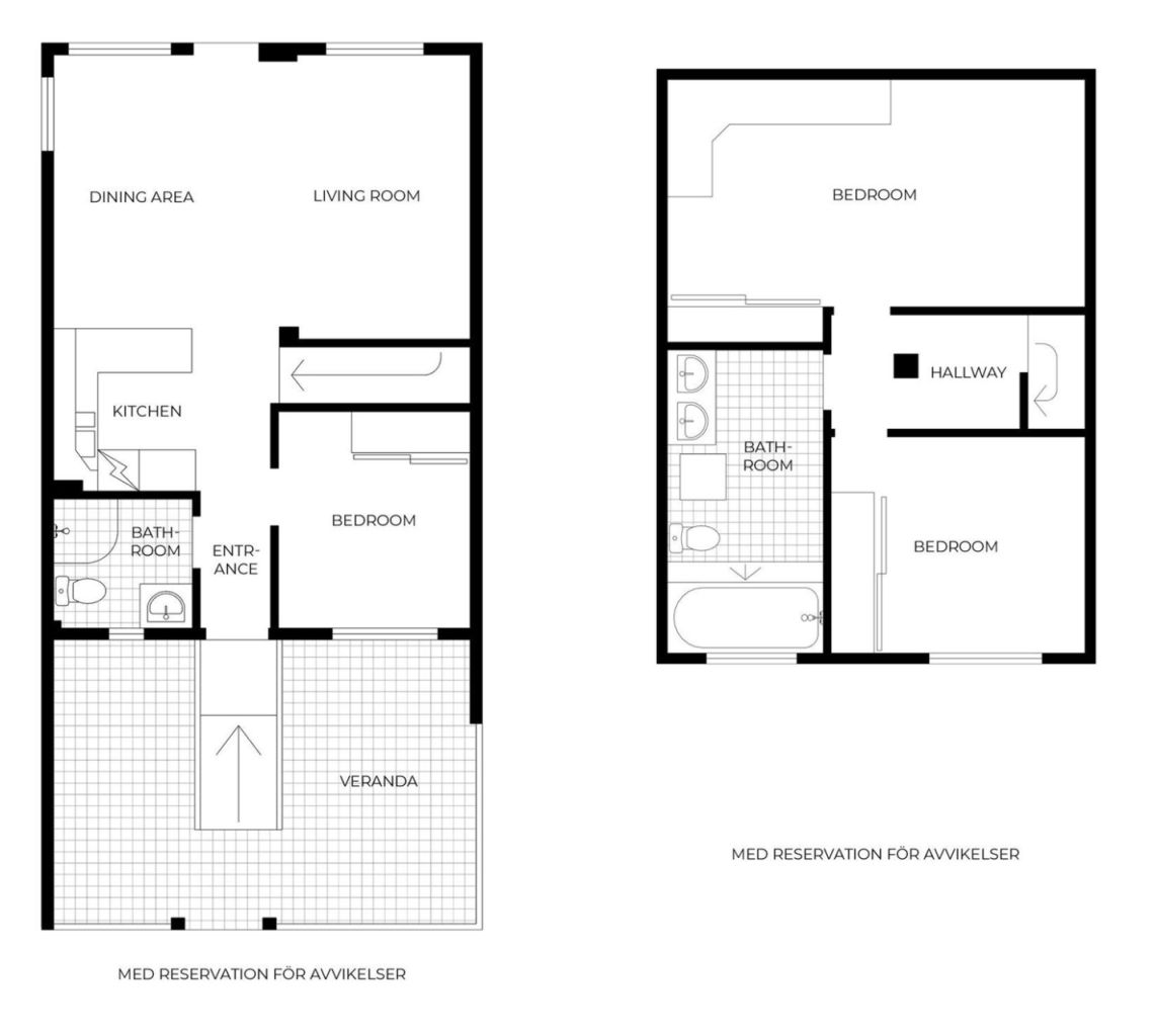
Світлий і зі смаком відремонтований дворівневий дворівневий будинок всього за декілька хвилин ходьби від пляжу Playa Los Locos. У квартирі три спальні, два санвузли і сучасна простора вітальня-кухня, що створює комфортні умови для повсякденного життя і відпочинку.
Басейн кондомініуму запрошує освіжитися в спекотні літні дні. Всі повсякденні послуги, ресторани та пляжна набережна знаходяться прямо по сусідству.
Цей готовий до заселення будинок ідеально підходить як місце відпочинку, а також місце для відмінного доходу від оренди.
Ціна
225 000 EURКімнати
4Спальні
3Ванні кімнати
2Житлова площа
99 м²Основні відомості
| Номер позиції | 670711 |
|---|---|
| Ціна | 225 000 EUR |
| Кімнати | 4 |
| Спальні | 3 |
| Ванні кімнати | 2 |
| Ванні кімнати з туалетом | 2 |
| Житлова площа | 99 м² |
| Виміри перевірено | Немає |
| Виміри базовані на | Інформація, надана власником |
| Поверх | 0 |
| Житлові поверхи | 2 |
| Стан | Good |
| Стоянка | Street parking |
| Знаходитися на рівні землі | Так |
| Розташований на верхньому поверсі | Так |
| Характеристика | Boiler |
| Місця |
Kitchen Bedroom Bedroom Bedroom Living room Bathroom Bathroom |
| Вид | Neighbourhood |
| Склади | Cabinet |
| Поверхня підлоги | Tile |
| Поверхні стін | Paint |
| Поверхня ванної кімнати | Tile |
| Кухонне обладнання | Gas stove, Freezer refrigerator, Cabinetry, Dishwasher |
| Обладнання ванної кімнати | Shower, Bathtub, Toilet seat, Mirror |
Будівництво та нерухомість докладніше
| Рік будівництва | 2002 |
|---|---|
| Вхід в експлуатацію | 2002 |
| Поверхи | 2 |
| Ліфт | Немає |
| Категорія сертифікату енергії | У процесі |
| Будівельні матеріали | Concrete |
| Покрівельні матеріали | Concrete tile |
| Фасадні матеріали | Concrete, Plaster |
| Місця загального використання | Swimming pool |
| Місцевість | Квартира |
| Дорога | Так |
| Земельна власність | Власний |
| Планувальна ситуація | Detailed plan |
| Комунальні послуги | Water, Sewer, Electricity |
Послуги
| Beach | 0.2 км |
|---|---|
| Grocery store |
1.7 км, Consum |
| Restaurant | 0.2 км |
Доступ громадського транспорту
| Airport |
45 км, Alicante |
|---|
Щомісячна плата
| Property tax | 168 € / рік (оцінка) |
|---|---|
| Maintenance | 50 € / місяць (оцінка) |
Витрати на придбання
| Transfer tax | 10 % |
|---|---|
| Other costs | 3 700 EUR (Оцінка) |
Так починається покупка Вашої нерухомості
- Заповніть коротку форму і ми домовимось про зустріч
- Наш представник негайно зв'яжеться з вами та домовиться про зустріч.
Ви хотіли би дізнатися більше про цю нерухомість?
Дякуємо Вам за Ваш контактний запит. Ми зв'яжемося з Вами найближчим часом!