Stan, Teeripolku 2
01450 Vantaa, Korso
Kérjük, lépjen kapcsolatba az értékesítési képviselővel az ingatlannal kapcsolatos további információkért.
Tehermentes eladási ár
159 000 EUR (61 518 611 Ft)Szobák
3Hálószobák
2Fürdőszobák
1Lakóterület
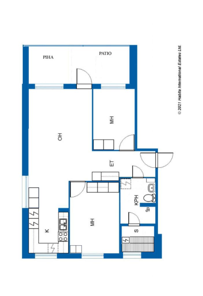
66 m²Alapvető részletek
| Listázási szám | 671537 |
|---|---|
| Tehermentes eladási ár | 159 000 EUR (61 518 611 Ft) |
| Eladási ár | 147 263 EUR (56 977 277 Ft) |
| A kötelezettségek aránya | 11 737 EUR (4 541 335 Ft) |
| A kötelezettségek egy része kifizethető | Igen |
| Szobák | 3 |
| Hálószobák | 2 |
| Fürdőszobák | 1 |
| Fürdőszobák WC-vel | 1 |
| Lakóterület | 66 m² |
| Mérések igazolva | Nem |
| Mérések alapján | alapszabály |
| Emelet | 1 |
| Lakóépületek | 1 |
| Állapot | Good |
| Üres tól | Szerződés szerint |
| Parkolás | Parking space with power outlet |
| Földszinten található | Igen |
| Jellemzők | Air source heat pump |
| Spaces |
Bedroom Kitchen Living room Bathroom Szauna Terrace |
| Nézetek | Inner courtyard, Street |
| Tárolók | Cabinet |
| Távközlés | Cable internet |
| Padlófelületek | Vinyl flooring |
| Falfelületek | Paint |
| Fürdőszoba felületek | Tile |
| Konyhai felszerelések | Ceramic stove, Freezer refrigerator, Cabinetry, Dishwasher |
| Fürdőszoba felszerelések | Shower, Washing machine connection, Underfloor heating, Space for washing machine, Bidet shower, Cabinet, Sink, Toilet seat, Mirrored cabinet |
| Azbeszt felmérés | Az épület 1994 előtt épült, azbeszt felmérést nem végeztek. |
| Megosztások | 407-472 |
Az épület és az ingatlan részletei
| Építési év | 1989 |
|---|---|
| Beiktatás | 1989 |
| Padlók | 3 |
| Lift | Nem |
| Tető típusa | Lapos tető |
| Szellőzés | Mechanikus elszívó szellőztetés |
| Energiatanúsítvány osztály | E , 2018 |
| Fűtés | District heating |
| Építőanyagok | Concrete |
| Tető anyagok | Felt |
| Homlokzati anyagok | Concrete |
| Felújítások |
Felújítási terv 2025 (Kész) Homlokzat 2024 (Kész) Homlokzat 2021 (Kész) Szellőzés 2020 (Kész) Underdrain 2018 (Kész) Zárak 2015 (Kész) Más 2013 (Kész) Tető 2011 (Kész) |
| Közös területek | Air-raid shelter |
| Menedzser | Koivu Isännöinti Oy |
| Menedzser elérhetőségei | Kirsi Salmenranta p. 0400 453 252 |
| Karbantartás | Huoltoyhtiö |
| Telek területe | 4028 m² |
| Parkolóhelyek száma | 25 |
| Épületek száma | 2 |
| Terep | Lakás |
| Út | Igen |
| Földtulajdon | Saját |
| Tervezési helyzet | Detailed plan |
| Önkormányzati gépészet | Water, Sewer, Electricity, District heating |
Energiatanúsítvány osztály
Lakásszövetkezet részletei
| Lakásszövetkezet neve | Asunto Oy Korson Teeripuisto |
|---|---|
| Részvények száma | 1 606 |
| Lakások száma | 28 |
| A lakások területe | 1612 m² |
| Megváltási jog | Nem |
Szolgáltatások
| Grocery store | 1 km |
|---|
Megközelítés tömegközlekedéssel
| Train | 0.8 km |
|---|---|
| Bus | 0.1 km |
Havi díjak
| Maintenance | 343,2 € / hónap (132 787,34 Ft) |
|---|---|
| Charge for financial costs | 201,43 € / hónap (77 935,18 Ft) |
| Víz | 20 € / hónap (7 738,19 Ft) / személy |
| Parking space | 14 € / hónap (5 416,73 Ft) |
Vásárlási költségek
| Transfer tax | 1,5 % |
|---|---|
| Registration fees | 89 EUR (34 435 Ft) |
Így kezdődik az ingatlan megvásárlása
- Töltse ki a rövid űrlapot és megbeszéljük a találkozót
- Képviselőnk késedelem nélkül felveszi Önnel a kapcsolatot és egyeztet egy találkozót.
Szeretne többet megtudni erről az ingatlanról?
Köszönjük kapcsolatfelvételi kérését. Azonnal felvesszük Önnel a kapcsolatot!