Градска къща, Peltomiehentie 4 B 9
48400 Kotka, Aittakorpi
Моля, свържете се с представителя на продажбите за повече подробности по този имот.
Продажбена цена без тежести
126 900 €Стаи
4Спални
3Бани
1Жилищна площ
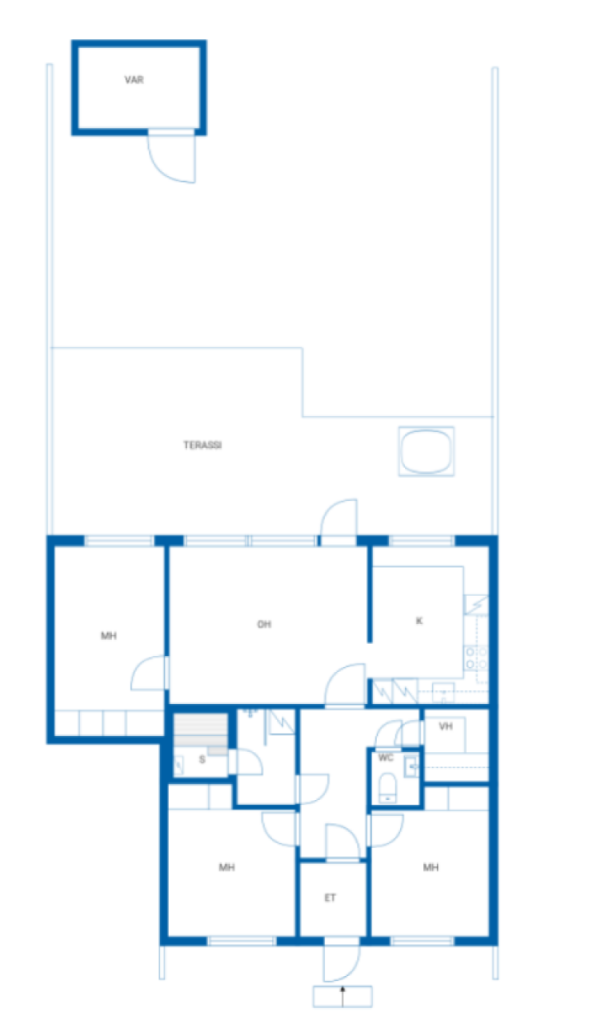
95.5 m²Основни данни
| Номер обява | 672494 |
|---|---|
| Продажбена цена без тежести | 126 900 € |
| Продажбена цена | 124 121 € |
| Дял от задълженията | 2 779 € |
| Част от задълженията могат да бъдат изплатени | Да |
| Стаи | 4 |
| Спални | 3 |
| Бани | 1 |
| Тоалетни | 1 |
| Жилищна площ | 95.5 m² |
| Измерванията са потвърдени | Не |
| Измерванията са въз основа на | Учредителен договор |
| Етаж | 1 |
| Жилищни етажи | 1 |
| Условие | Добре |
| Паркинг | Дворен паркинг, Навес за автомобили |
| Намира се на приземния етаж | Да |
| Характеристики | Тройно остъклени прозорци, Въздушна термопомпа |
| Пространства |
Кухня
Баня Сауна Всекидневна Спалня Тоалетна Антре Подслон Дрешник Тераса Външно складиране |
| Изгледи | Заден двор, Вътрешен двор, Гора, Природа |
| Складове | Шкаф, Дрешник, Външно складиране |
| Телекомуникации | Кабелна ТВ, Оптичен интернет |
| Подови повърхности | Ламинат, Плочки |
| Стенни повърхности | Тапет, Боя |
| Повърхности в банята | Плочки |
| Кухненско оборудване | Индукционен котлон, Хладилник, Фризер, Шкафове, Миялна машина, Самостоятелна фурна |
| Оборудване за баня | Душ, Свързване на пералня, Подово отопление, Пространство за пералня |
| Инспекции | Оценка на състоянието (17.09.2012 г.) |
| Проучване за азбест | Сградата е построена преди 1994 г. и не е извършвано проучване за азбест. |
| Акции | 38234-43780 |
Данни за сградата и имота
| Година на строителство | 1973 |
|---|---|
| Откриване | 1973 |
| Етажи | 1 |
| Повдигане | Не |
| Вид покрив | Фронтон покрив |
| Вентилация | Естествена вентилация |
| Клас на енергиен сертификат | E , 2018 |
| Отопление | Централно отопление, Водна централна отоплителна инсталация, Въздушна термопомпа |
| Строителни материали | Бетон |
| Покривни материали | Ламарина |
| Фасадни материали | Мазилка |
| Реновации |
План за реновация 2025 (Готово) Телекомуникации 2023 (Готово) Друго 2021 (Готово) Покрив 2020 (Готово) Балкони 2019 (Готово) Друго 2016 (Готово) Подземен дренаж 2014 (Готово) Друго 2014 (Готово) Отопление 2014 (Готово) Водопроводи 2014 (Готово) Двор 2012 (Готово) Отопление 2011 (Готово) Фасада 2011 (Готово) Покрив 2009 (Готово) Прозорци 2009 (Готово) Телекомуникации 2008 (Готово) Врати 2007 (Готово) Врати 2004 (Готово) Общи площи 2002 (Готово) |
| Общи площи | Стая за сушене, Студена изба, Перално помещение |
| Мениджър | Kotkan Seudun Talokeskus Oy |
| Информация за контакт с мениджъра | Mika Saarinen/052251222 |
| Поддръжка | Hoito talkoilla. Lumityöt ulkoistettu Kotkan Talokeskus Oy |
| Площ на парцела | 8364 m² |
| Брой паркоместа | 22 |
| Брой сгради | 3 |
| Терен | Равен |
| Шосе | Да |
| Поземлена собственост | Отдаване под наем |
| Собственик на земя | Kotkan Kaupunki |
| Наем на година | 13 865,04 € |
| Договорът за наем изтича | 31.08.2072 г. |
| Ситуация на планиране | Подробен план |
| Общинско инженерство | Вода, Канализация, Електричество, Централно отопление |
Клас на енергиен сертификат
Данни за жилищен кооператив
| Име на жилищен кооператив | Asunto Oy Pahnapellonpuisto |
|---|---|
| Година на основаване | 1972 |
| Брой акции | 114 128 |
| Брой жилища | 22 |
| Жилищна зона | 1929.5 m² |
| Доходи от наем за година | 2 140 |
| Право на обратно изкупуване | Не |
Услуги
| Магазин за хранителни стоки | 0.5 km |
|---|---|
| Училище | 1.5 km |
Достъп до обществен транспорт
| Автобус | 0.5 km |
|---|
Месечни такси
| Поддръжка | 429,75 € / месец |
|---|---|
| Такса за финансови разходи | 76,4 € / месец |
| Място за паркиране | 10 € / месец |
Разходи по закупуването
| Данък върху прехвърлянето | 1,5 % |
|---|
Така започва покупката на вашия имот
- Попълнете кратката форма и ние ще организираме среща
- Наш представител ще се свърже с Вас без забавяне и ще организира среща.
Желаете ли да научите повече за този имот?
Благодарим за заявката Ви за контакт. Ще се свържем с Вас своевременно!