Condominium
1962013 Hurghada 1, Hurghada
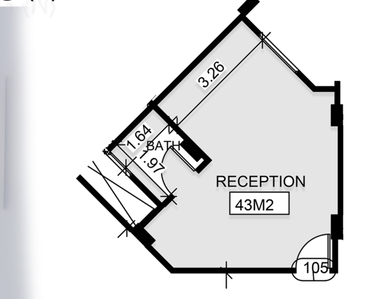
Ervaar het ultieme luxe leven in Hurghada, Egypte. Dit prachtige nieuwe resort ligt in het hart van de stad en biedt een adembenemend uitzicht op de tuin, de stad en het zwembad. Deze accommodatie heeft 3 verdiepingen met moderne woonruimte en beschikt over een ruime woonoppervlakte van 43 vierkante meter en 1 badkamer.
Geniet van het gemak van een seniorenvriendelijk ontwerp, waardoor het perfect is voor mensen die op zoek zijn naar een zorgeloze levensstijl. De accommodatie bevindt zich in een beveiligd gebouw met een beveiligingssysteem dat 24 uur per dag geopend is, wat uw veiligheid en gemoedsrust garandeert. Maak gebruik van de voorzieningen ter plaatse, waaronder een fitnessruimte, zwembad, parkeergarage en restaurant, allemaal op loopafstand van een park, een zwemzaal en een restaurant. Dit hotel ligt op slechts 10 km van de internationale luchthaven van Hurghada en biedt de perfecte mix van comfort, gemak en bereikbaarheid.
Verkoopprijs
€ 39.814Kamers
1Slaapkamers
0Badkamers
1Woonoppervlak
43 m²Basisgegevens
| Overzichtsnummer | 670729 |
|---|---|
| Nieuwbouw | Ja (Under construction) |
| Verkoopprijs | € 39.814 |
| Kamers | 1 |
| Slaapkamers | 0 |
| Badkamers | 1 |
| Woonoppervlak | 43 m² |
| Maten zijn geverifieerd | Ja |
| Maten gebaseerd op | Bouwtekening |
| Verdieping | 0 |
| Verdiepingen voor bewoning | 1 |
| Voorwaarde | New |
| Beschikbaar vanaf | Volgens overeenkomst |
| Parkeerplaats | Parking space |
| Bevindt zich op de begane grond | Ja |
| Geschikt voor gehandicapten | Ja |
| Seniorenhuisvesting | Ja |
| Kenmerken. | Security system |
| Bezichtigingen | Garden, City, Swimming pool |
| Materiaal vloeroppervlakte | Tile, Concrete |
| Muuroppervlakken | Concrete, Paint |
| Materiaal badkamervloeren | Tile, Concrete |
| Badkamervoorzieningen | Sink |
| Links |
Gegevens van het gebouw en het eigendom
| Bouwjaar | 2026 |
|---|---|
| Inauguratie | 2026 |
| Verdiepingen | 3 |
| Lift | Ja |
| Klasse energiecertificaat | Energiecertificaat is niet wettelijk verplicht |
| Dakmateriaal | Concrete tile |
| Voorgevel materiaal | Concrete, Tile, Concrete element, Stone |
| Gemeenschappelijke ruimtes | Gym, Swimming pool, Parking hall, Restaurant |
| Terrein | Vlak |
| Wateroppervlak | Right to use shore / beach |
| Weg | Ja |
| Eigendom grond | Eigendom |
| Planningssituatie | General plan |
| Nutsbedrijf gemeente | Water, Sewer, Electricity |
Services
| Swimming hall | 0.1 km |
|---|---|
| Park | 0.1 km |
| Restaurant | 0.1 km |
| Gym | 0.1 km |
Toegang tot openbaar vervoer
| Airport |
10 km , Hurghada International Airport |
|---|
Maandelijkse kosten
| Water | 0,4 € / maand |
|---|
Aankoopkosten
Dit is hoe het kopen van uw eigendom begint
- Vul het korte formulier in en we zullen een vergadering regelen
- Onze vertegenwoordiger neemt zonder vertraging contact met u op en regelt een vergadering.
Wilt u meer informatie over dit object?
Hartelijk dank voor uw aanvraag contact op te nemen. We nemen snel contact met u op!