Мени Мени
Затворено

Претрага по позивном броју

Породична кућа, Lautamiehenpolku 7 A

00690 Helsinki, Torpparinmäki

Detached house Torpparinmäki 3-4h, h, s

2020 built on your own plot of high quality detached house! Bright and well-designed floor plan. Spacious living room with high space and large windows to a sheltered terrace of about 70 m2, in addition to a glazed terrace on the west end of the house. For the floors of terraces used Siberian spruce. Open terrace fenced. The entrance is asphalted, and the house is circled by petrifications. The open kitchen has high-quality and integrated appliances including an integrated coffee machine, stone countertops, and a wine cabinet. Floors of uniform vinyl cork without thresholds. Spa department with double jacuzzi, two high-quality “oras” showers. Opposite boards and a glass wall in the sauna. In the utility room, reservations for washing and drying machines. Upstairs multifunction/hobby room with one window and skylight, with a floor area of about 40 m2 (also includes spaces less than 1600 cm). Heating is provided by water-circulating underfloor heating with worry-free district heating (radiators with thermostats in the hobby room upstairs), as well as an air heat pump for cooling. The house has a keyless Yale interlock and a burglar alarm system.

Дан отворених врата: 12. 10. 2025.
15:00 – 15:30

Anne Lindqvist

English Finnish Swedish
Директор продаје
Habita Vantaa
Финска напредна квалификација за некретнине, Финска квалификација за некретнине
Продајна цијена
549.000 €
Собе
4
Спаваће собе
2
Купатила
1
Настањено подручје
139 м²

Основни детаљи

Број објаве 669732
Продајна цијена 549.000 €
Собе 4
Спаваће собе 2
Купатила 1
Тоалети 2
Купатила са тоалетом 1
Настањено подручје 139 м²
Мјере потврђене Не
Мјере се темеље на План градње
Спрат 2
Стамбене етаже 2
Стање Dobro
Слободно од According to the contract
Паркинг простор Паркинг мјесто, Дворишни паркинг
Карактеристике Ваздушна пумпа за топлоту
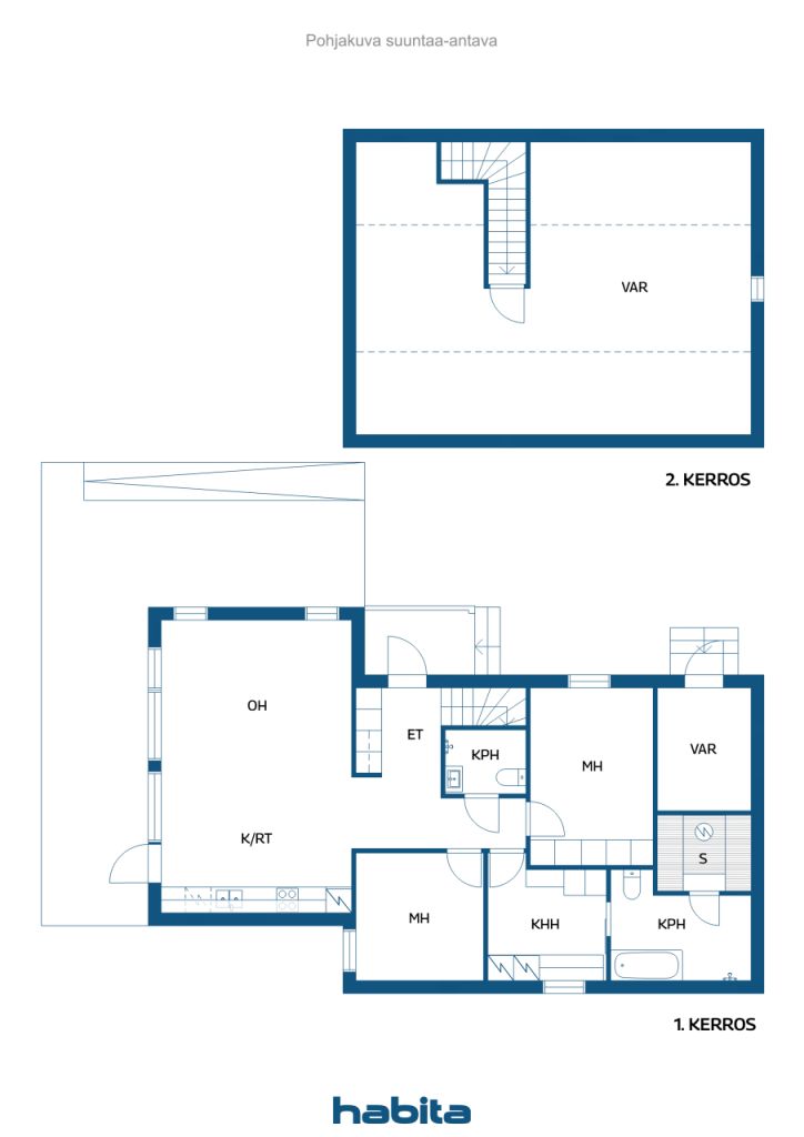
Простори Дневна соба (Југозапад)
Кухиња (Југозапад)
Спаваћа соба (Југозапад)
Сауна
Остава
Ѕастакљена тераса (Сјеверозапад)
Тераса (Југозапад)
Погледи Двориште, Предње двориште, Сусједство
Складиште Ормар/ормари, Спољна остава
Телекомуникације Интернет са оптичким каблом
Подне површине Подни винил
Зидне повшине Боја
Купатилске површине Плочица
Опрема за кухињу Индукциони шпорет, Фрижидер замрзивач, Ормарићи, Кухињска напа, Машина за прање суда, Одвојена рерна, Микроталасна пећница
Опрема за купатило Туш, Када
Опрема помоћних просторија Прикључак за машину за веш

Детаљи о згради и некретнини

Година изградње 2020
Свечано отварање 2020
Спратови 2
Лифт Не
Тип крова Забатни кров
Вентилација Механичка вентилација
Темељ Шипови и бетон
Класа енергетског сертификата B , 2018
Гријање Даљинско гријање, Радиантно подно гријање
Грађевински материјал Дрво
Материјали за кровове Бетонска плочица
Материјал за фасаду Дрво
Заједничке просторије Шупа за смеће
Референтни број некретнине 91-35-178-41
Оптерећења 595.000 €
Одржавање Omatoiminen
Област парцеле 350 м²
Број паркинг места 2
Број зграда 1
Терен Равно
Пут Да
Власништво над земљом Посједовати
Планска ситуација Детаљан план
Комунална инфраструктура Вода, Канализација, Електрична енергија, Гријање на градској топлани

Класа енергетског сертификата

B

Услуге

Продавница 0.9 км, Supermarket Torpparinmäki, grocery
 
Школа 1 км, Torpparinmäen school
 
Парк 0.4 км, Laamanni park
 
Голф 1.9 км  

Приступ јавном превозу

Аутобус 0.3 км  

Месечне накнаде

Порез на некретнине 640 € / година
Струја 140 € / мјесец
Смеће 20 € / мјесец
Гријање 170 € / мјесец

Трошкови куповине

Порез на пренос 3 %
Трошкови регистрације 16 €

Овако почиње куповина Ваше некретнине

  1. Попуните кратку форму и договорићемо састанак
  2. Наш представник ће Вас контактирати без одлагања и договорити састанак.

Да ли бисте жељели да сазнате више о овој некретнини?

Дошло је до грешке при покушају слања захтева за контакт. Молим Вас, покушајте поново.

Учитавање

Хвала вам на захтјеву за контакт. Ми ћемо Вас одмах контактирати!