ខុនដូ, Tankomäenkatu 8
00950 Helsinki, Vartiokylä
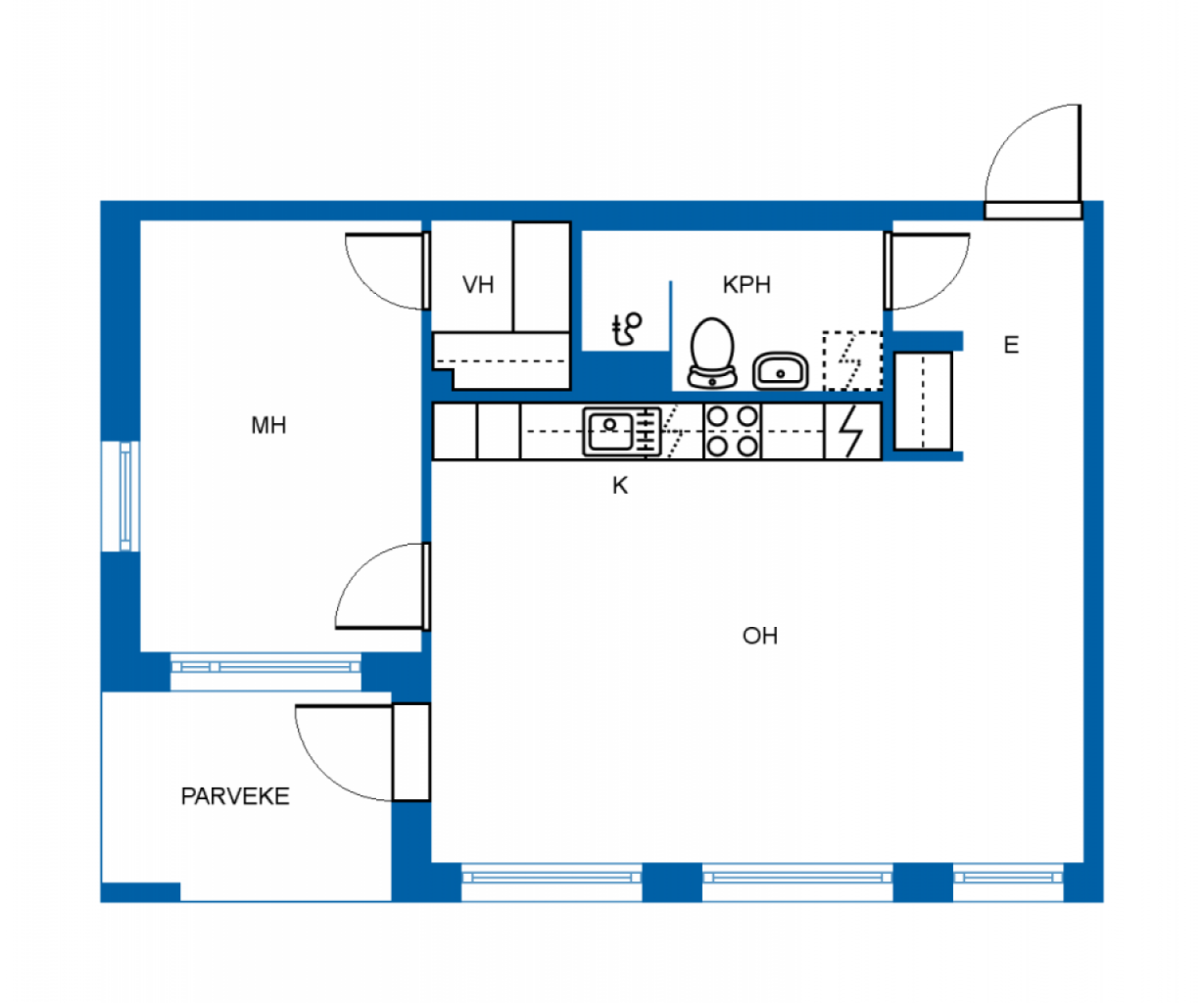
ឥឡូវមើលនេះគឺល្អ! ការរស់នៅបែបថ្មីនៅតំបន់ 00950! អគារអាផាតមិនភាគច្រើនគឺមកពីទសវត្សរ៍ទី 60 ដែលវាមានគុណសម្បត្តិរបស់វា។ ទោះយ៉ាងណាក៏ដោយ វាមានច្រើនឆ្នាំទៅមុខ មុនពេលការជួសជុលធំៗ។ នេះគឺជាផ្ទះថ្មីស្ទើរតែ។ ផ្ទះល្វែងជ្រុងភ្លឺជាមួយនឹងបង្អួចធំ។ អគារនេះត្រូវបានបញ្ចប់នៅឆ្នាំ 2018 ដូច្នេះការព្រួយបារម្ភអំពីការជួសជុលគឺមានតិចតួចណាស់។ យ៉រកញ្ចក់ ប្រឈមមុខនឹងព្រះអាទិត្យពេលរាត្រី។ បើកផ្ទះបាយភ្ជាប់ជាមួយបន្ទប់ទទួលភ្ញៀវធំទូលាយ។ ជាន់ទី 2/5 ជណ្តើរយន្ត។ ផ្ទះនេះអាចរកបានភ្លាមៗ! ក្រុមហ៊ុនមានសូណា បន្ទប់បោកអ៊ុត បន្ទប់សម្ងួត និងកន្លែងផ្ទុកឧបករណ៍ខាងក្រៅធំទូលាយ។ ទីតាំងល្អនៅជិតធម្មជាតិ និងតំបន់ខាងក្រៅល្អនៅជិតផ្ទះ។ ហាងលក់គ្រឿងទេស K-Market Mellunmäki នៅក្បែរនោះមានចម្ងាយត្រឹមតែ 0.75 គីឡូម៉ែត្រប៉ុណ្ណោះ ហើយមជ្ឈមណ្ឌលផ្សារទំនើប Itis មានចម្ងាយ 3.1 គីឡូម៉ែត្រ។ ការដឹកជញ្ជូនសាធារណៈរបស់ទីក្រុងក៏អាចចូលបានយ៉ាងងាយស្រួលផងដែរ ចំណតឡានក្រុងមានចម្ងាយត្រឹមតែ 0.25 គីឡូម៉ែត្រប៉ុណ្ណោះ។
តម្លៃលក់មិនកំណត់
179.000€ (837.499.591៛)បន្ទប់
2បន្ទប់គេង
1បន្ទប់ទឹក
1តំបន់រស់នៅ
53 m²ព័ត៌មានលម្អិតជាមូលដ្ឋាន
| លេខចុះបញ្ជី | 669833 |
|---|---|
| តម្លៃលក់មិនកំណត់ | 179.000€ (837.499.591៛) |
| តម្លៃលក់ | 179.000€ (837.499.591៛) |
| បន្ទប់ | 2 |
| បន្ទប់គេង | 1 |
| បន្ទប់ទឹក | 1 |
| បន្ទប់ទឹកជាមួយបង្គន់ | 1 |
| តំបន់រស់នៅ | 53 m² |
| ការវាស់វែងត្រូវបានផ្ទៀងផ្ទាត់ | គ្មាន |
| ការវាស់វែងផ្អែកលើ | លក្ខន្តិកៈស្តីពីសមាគម |
| ជាន់ | 2 |
| ជាន់លំនៅដ្ឋាន | 1 |
| លក្ខខណ្ឌ | ល្អ |
| កន្លែងនៅទំនេរពី | ឥតគិតថ្លៃឥឡូវនេះ! |
| ចំណតរថយន្ត | កន្លែងចតរថយន្ត, ចំណតឡាន, កន្លែងចតរថយន្តតាមដងផ្លូវ |
| លក្ខណៈពិសេស | បង្អួចកញ្ចក់បីជាន់, គ្រឿងទប់កម្តៅ |
| កន្លែង |
បន្ទប់គេង
(ភាគនិរតី) បើកផ្ទះបាយ បន្ទប់ទឹក យ៉រកញ្ចក់ (ភាគនិរតី) បន្ទប់ទទួលភ្ញៀវ (ភាគនិរតី) |
| មើល | អ្នកជិតខាង, ទីក្រុង |
| កន្លែងផ្ទុក | ទូរ, ទូរដើរចូលបាន, មូលដ្ឋានផ្ទុកបន្ទប់ក្រោមដី |
| ទូរគមនាគមន៍ | ទូរទស្សន៍ខ្សែកាប, អ៊ីនធឺណិតតាមខ្សែកាប |
| ផ្ទៃជាន់ | ក្ដារក្រាល |
| ផ្ទៃជញ្ជាំង | ថ្នាំលាប |
| ផ្ទៃបន្ទប់ទឹក | ការ៉ូ |
| ឧបករណ៍ផ្ទះបាយ | ចង្ក្រានសេរ៉ាមិច, ទូរទឹកកក, ទូ, ក្រណាត់ផ្ទះបាយ, ម៉ាស៊ីនលោងចាន |
| ឧបករណ៍បន្ទប់ទឹក | ផ្កាឈូក, ការតភ្ជាប់ម៉ាស៊ីនបោកគក់, កំដៅជាន់ក្រោម, កន្លែងសម្រាប់ម៉ាស៊ីនបោកគក់, ផ្កាឈូក Bidet, ទូរ, ឡាប៊ូ, ជញ្ជាំងផ្កាឈូក, កៅអីបង្គន់អនាម័យ, ទូរកញ្ចក់ |
| ការត្រួតពិនិត្យ |
ការវាយតម្លៃស្ថានភាព
(31 សីហា 2022) ការវាយតម្លៃស្ថានភាព (6 កញ្ញា 2019) |
| ចេករំលែក | 4051-4777 |
| ការពិពណ៌នា | បន្ទប់គេង 2 ផ្ទះបាយ បន្ទប់ទឹក បន្ទប់ទទួលភ្ញៀវ យ៉រ glazed |
ព័ត៌មានលម្អិតអំពីអគារ និងអចលនទ្រព្យ
| ការសាងសង់បានចាប់ផ្តើម | 2017 |
|---|---|
| ឆ្នាំសាងសង់ | 2018 |
| ពិធីសម្ពោធ | 2018 |
| ជាន់ | 5 |
| ជណ្តើរយន្ត | បាទ/ចាស |
| ប្រភេទដំបូល | ដំបូលផ្ទះល្វែង |
| ខ្យល់ចេញចូល | ខ្យល់ចេញចូលដោយមេកានិច |
| គ្រឹះ | បេតុង |
| ថ្នាក់វិញ្ញាបនបត្រថាមពល | C , 2013 |
| កំដៅ | កំដៅស្រុក, កំដៅទឹកកណ្តាល, វេអាទ័រ |
| សម្ភារសំណង់ | បេតុង |
| សម្ភារៈដំបូល | Bitumen - ហ្រី្វត |
| សម្ភារៈផ្នែកខាងមុខ | ម្នាងសិលា |
| ការជួសជុល |
ផែនការជួសជុល 2025 (រួចរាល់) ខ្យល់ចេញចូល 2025 (រួចរាល់) ផ្សេងទៀត 2024 (រួចរាល់) ជណ្ដើរ 2021 (រួចរាល់) ផ្សេងទៀត 2020 (រួចរាល់) |
| តំបន់ទូទៅ | ការផ្ទុកគ្រឿងបរិក្ខា, សូណា, ទីជម្រកខ្យល់អាកាស, បន្ទប់សម្ងួត, កន្លែងផ្ទុកកង់, បន្ទប់បោកខោអាវ |
| អ្នកគ្រប់គ្រង | Aarre Isännöinti Oy |
| ព័ត៌មានទំនាក់ទំនងរបស់អ្នកគ្រប់គ្រង | Thomas Kovanen, p. 020 198 6700 |
| ថែទាំជួសជុល | Huoltoyhtiö |
| ផ្ទៃក្រឡាដី | 2738 m² |
| ចំនួនកន្លែងចតរថយន្ត | 21 |
| ចំនួនអគារ | 1 |
| ដី | ផ្ទះល្វែង |
| ផ្លូវ | បាទ/ចាស |
| កម្មសិទ្ធិដីធ្លី | ជួល |
| ម្ចាស់ដី | Helsingin kaupunki, 31.12.2080 |
| ជួលក្នុងមួយឆ្នាំ | 58.000 € (271.368.582,4 ៛) |
| ស្ថានភាពផែនការ | ប្លង់លម្អិត |
| វិស្វកម្មក្រុង | ទឹក, លូទឹកស្អុយ, អគ្គិសនី, កំដៅស្រុក |
ថ្នាក់វិញ្ញាបនបត្រថាមពល
ព័ត៌មានលម្អិតអំពីសហករណ៍លំនៅដ្ឋាន
| ឈ្មោះសហករណ៍លំនៅដ្ឋាន | Asunto Oy Helsingin Niittypolku |
|---|---|
| ឆ្នាំនៃគ្រឹះ | 2017 |
| ចំនួនភាគហ៊ុន | 25.000 |
| ចំនួនលំនៅដ្ឋាន | 32 |
| តំបន់នៃលំនៅដ្ឋាន | 1757 m² |
| សិទ្ធិនៃការប្រោសលោះ | គ្មាន |
សេវាកម្ម
| តូបលក់ទំនិញគ្រប់មុខ | 0.8 km |
|---|---|
| មជ្ឈមណ្ឌលទិញទំនិញ |
3.1 km http://www.itis.fi/fi |
| តូបលក់ទំនិញគ្រប់មុខ | 2.7 km |
មធ្យោបាយធ្វើដំណើរសាធារណៈ
| ឡានក្រុង | 0.3 km |
|---|
ថ្លៃសេវាប្រចាំខែ
| ការជួសជុលថែទាំ | 286,2 € / ខែ (1.339.063,59 ៛) |
|---|---|
| ទឹក | 20 € / ខែ (93.575,37 ៛) / បុគ្គល |
| កន្លែងចតរថយន្ត | 25 € / ខែ (116.969,22 ៛) |
| សូណា | 15 € / ខែ (70.181,53 ៛) |
| ផ្សេងទៀត | 148,4 € / ខែ (694.329,27 ៛) |
ការចំណាយលើការទិញ
| ពន្ធផ្ទេរ | 1,5 % |
|---|---|
| ពន្ធផ្ទេរ | 92€ (430.447៛) |
នេះជារបៀបដែលការទិញអចលនទ្រព្យរបស់អ្នកចាប់ផ្តើម
- បំពេញទម្រង់ខ្លីៗ ហើយយើងនឹងរៀបចំការប្រជុំ
- តំណាងរបស់យើងនឹងទាក់ទងអ្នកដោយមិនបង្អង់យូរ ហើយរៀបចំការប្រជុំ។
តើអ្នកចង់ដឹងបន្ថែមអំពីអចលនទ្រព្យនេះទេ?
សូមអរគុណចំពោះការស្នើសុំទំនាក់ទំនងរបស់អ្នក។ យើងនឹងទាក់ទងអ្នកភ្លាមៗ!