Condominium
1962013 Hurghada 1, Sahl Hasheesh
Experience the ultimate in luxury living in Hurghada, Egypt's premier Red Sea destination.
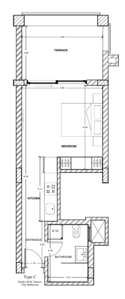
This stunning new condominium in Sahl Hasheesh is a must-see for those seeking a tranquil retreat with unparalleled amenities. Located in floor 2 of the building, this 54 square meter studio is situated in a senior-friendly complex, enjoy breathtaking views of the swimming pool, perfect for relaxing after a day at the beach, just a short 0.2 km away.
The condominium features a range of convenient services, including a gym, restaurant, and parking hall, all within walking distance. Take advantage of the proximity to Hurghada International Airport, just 25 km away.
Selling price
€104 253 (R 2 073 698)Rooms
1Bedrooms
0Bathrooms
1Living area
54 m²Basic details
| Listing number | 671086 |
|---|---|
| New construction | Yes (Under construction) |
| Selling price | €104 253 (R 2 073 698) |
| Rooms | 1 |
| Bedrooms | 0 |
| Bathrooms | 1 |
| Living area | 54 m² |
| Measurements verified | Yes |
| Measurements based on | Articles of association |
| Floor | 2 |
| Residential floors | 1 |
| Condition | New |
| Vacancy from | According to contract |
| Suitable for disabled | Yes |
| Senior housing | Yes |
| Features | Security system |
| Views | Swimming pool |
| Floor surfaces | Tile, Concrete |
| Wall surfaces | Concrete, Paint |
| Bathroom surfaces | Tile, Concrete |
| Links |
Building and property details
| Construction year | 2027 |
|---|---|
| Inauguration | 2027 |
| Floors | 3 |
| Lift | No |
| Energy certificate class | Energy certificate is not required by law |
| Building materials | Concrete |
| Facade materials | Tile, Concrete element |
| Common areas | Lobby, Gym, Swimming pool, Parking hall, Restaurant |
| Terrain | Flat |
| Water area | Right to use shore / beach |
| Road | Yes |
| Land ownership | Own |
| Planning situation | General plan |
| Municipality engineering | Water, Sewer, Electricity |
Services
| Park | 0.1 km |
|---|---|
| Restaurant | 0.1 km |
| Beach | 0.2 km |
| Swimming hall | 0.1 km |
Public transportation access
| Airport |
25 km, Hurghada International Airport |
|---|
Monthly fees
| Water | 0,4 € / month (7,96 R) |
|---|
Purchase costs
This is how the buying of your property starts
- Fill out the short form and we will arrange a meeting
- Our representative will contact you without delay and arrage a meeting.
Would you like to know more about this property?
Thank you for your contact request. We'll contact you promptly!