Apartamentos com acesso por Hall comum, Tuomonkuja 7
65280 Vaasa, Gerby
Entre em contato com o representante de vendas para obter mais detalhes sobre a propriedade.
Casa aberta: 11 de jan. de 2026
15:00 – 15:20
Preço de venda sem restrições
€ 115.000Divisões
2Quartos
1Casas de banho
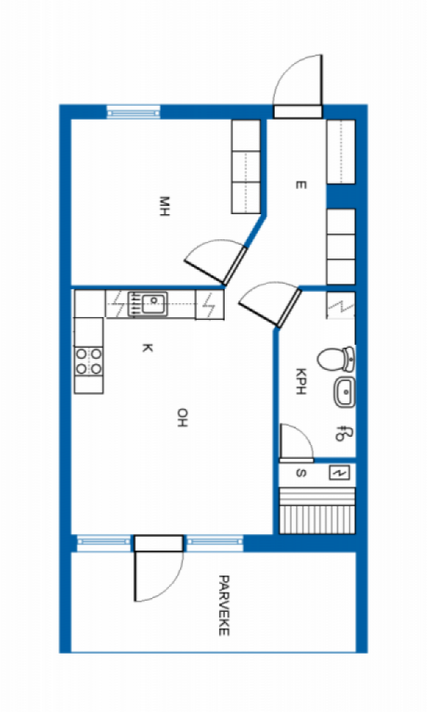
1Área
44 m²Detalhes básicos
| Número de listagem | 670652 |
|---|---|
| Preço de venda sem restrições | € 115.000 |
| Preço de venda | € 115.000 |
| Divisões | 2 |
| Quartos | 1 |
| Casas de banho | 1 |
| Casas de banho com sanita | 1 |
| Área | 44 m² |
| Medições verificadas | Não |
| Medições baseadas em | Estatutos da associação |
| Piso | 2 |
| Número de pisos | 1 |
| Estado | Bom |
| Estacionamento | Lugar de garagem com tomada eletrica |
| Características | Vidros triplos, Recuperação de calor |
| Espaços |
Terraço
(Sul) Sauna |
| Visualizações | Pátio interior, Bairro, Rua |
| Arrumos | Roupeiro / roupeiros, Armazenamento ao ar livre |
| Telecomunicações | TV cabo, Internet fibra óptica |
| Materiais do chão | Laminado |
| As superfícies das paredes | Pintado |
| Superfícies da casa de banho | Azulejo |
| Equipamento de cozinha | Placa de indução, Frigorífico com congelador, Exaustor, Máquina de lavar loiça, Forno separado |
| Equpamentos de casa de banho | Duche, Conexão máquina de lavar roupa, Pavimento radiante, Espaço para máquina de lavar roupa, Chuveiro bidê, Armário, Lavatório, Parede do chuveiro, Tampo de sanita |
Detalhes de construção e propriedade
| Ano de construção | 2020 |
|---|---|
| Inauguração | 2020 |
| Pisos | 2 |
| Elevador | Não |
| Tipo de telhado | Galpão telhado |
| Ventilação | Ventilação mecânica |
| Certificado de classe energética | C , 2013 |
| Aquecimento | Aquecimento central |
| Materiais de construção | Betão, Madeira |
| Materiais de telhado | Folha de metal |
| Materiais da fachada | Madeira |
| Áreas comuns | Espaço de armazenamento, Galpão de lixo |
| Gerente | JS-Isännöinti, Jari Välimäki |
| Informação de contacto do gerente | 050 4112456 |
| Manutenção | Kiinteistöhuolto Kolmonen |
| Área do lote | 2012 m² |
| Número de parques de estacionamento | 20 |
| Número de prédios | 2 |
| Terreno | Plano |
| Estrada | Sim |
| Propriedade do imovél | Arrendamento |
| Proprietário do imóvel | Vaasan kaupunki |
| Renda Anual | 4.600 € |
| Contrato de arrendamento termina | 31 de dez. de 2057 |
| Situação de planeamento | Plano detalhado |
| Infraestrutura do município | Água, Esgotos, Eletricidade, Aquecimento central |
Certificado de classe energética
Detalhes de cooperativa de habitação
| Nome da cooperativa de habitação | As Oy Vaasan Tuomonkuja 7 Bost Ab |
|---|---|
| Número de habitações | 20 |
| Área de habitações | 806 m² |
| Direito de resgate | Não |
Taxas mensais
| Manutenção | 149,6 € / mês |
|---|---|
| Água | 15 € / mês / pessoa |
Custos de compra
| Imposto de transferência | 1,5 % |
|---|---|
| Taxas de registro | € 92 |
Assim começa a compra do seu imóvel
- Preencha o pequeno formulário e marcaremos uma reunião
- Nosso representante entrará em contacto consigo sem demora e marcará uma reunião.
Quer saber mais informações sobre esta propriedade?
Obrigado pelo seu pedido de contato. Nós entraremos em contato consigo imediatamente!