Menu Menu
Close

Search by reference number

Koulukatu 40

80100 Joensuu

Please contact the sales representative for further details on this property.

Pentti Hyttinen

English Finnish
Real Estate Agent
Habita Joensuu
Finnish real estate qualification, Entrepreneur

Jani Nevalainen

English Finnish
Real Estate Agent
Habita Joensuu
Finnish real estate qualification, Entrepreneur

Basic details

Listing number 666009
Unencumbered selling price €66,000 ($77,462)
Selling price 66,000 € ($77,462)
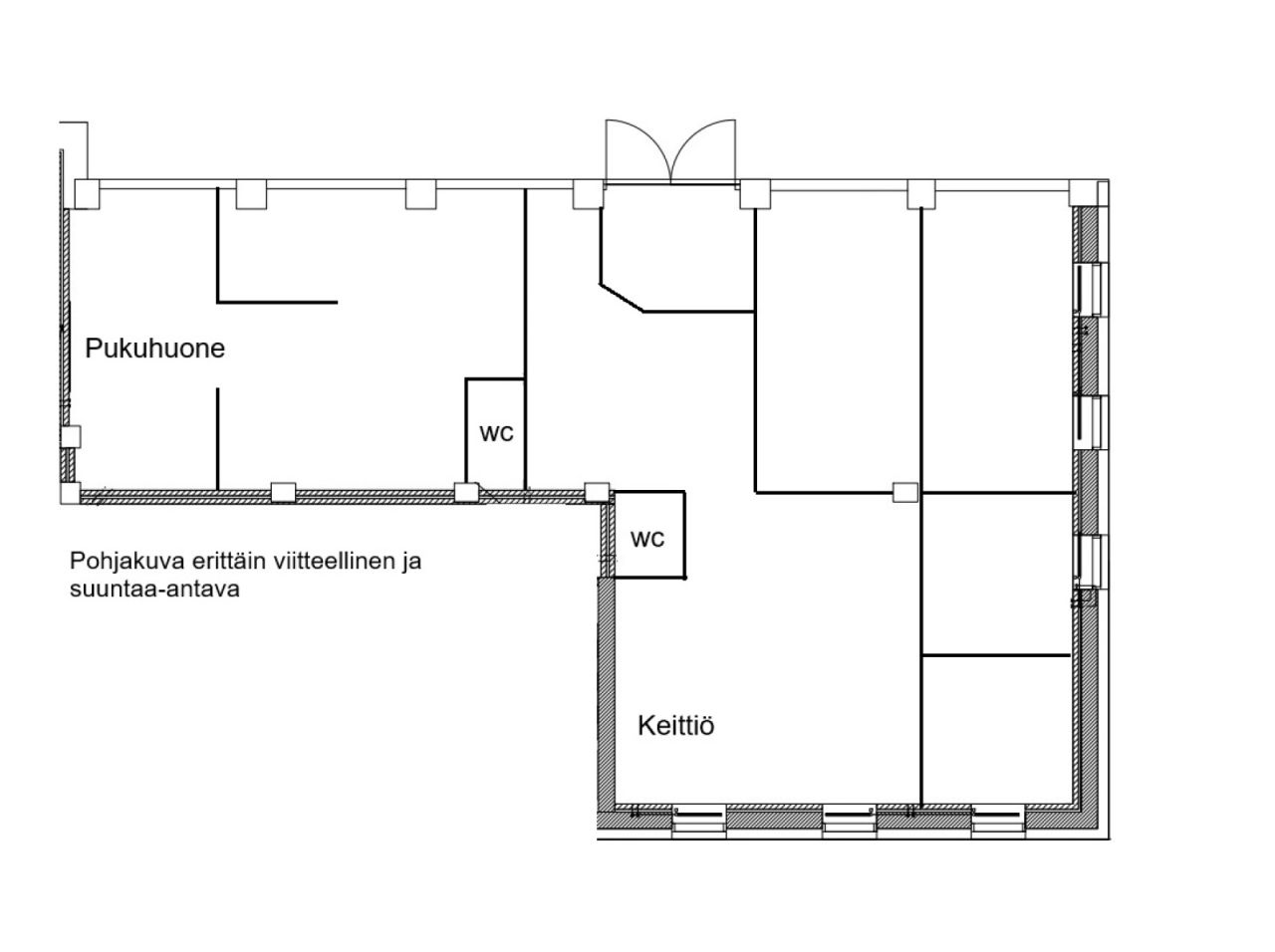
Types Office
Floor 1
Commercial floors 1
Total area 1453.1 sq ft
Measurements verified No
Measurements based on House manager's certificate
Condition Good
Features Computer network, Vestibule, Curb loading zone
Asbestos survey The building was built before 1994 and an asbestos survey has not been performed.

Housing cooperative details

Housing cooperative name Asunto Oy Joensuun Ristinpuisto
Year of foundation 1952
Number of shares 2,777
Number of dwellings 47
Area of dwellings 27180 sq ft
Number of commercial spaces 1
Area of commercial spaces 1453.1 sq ft
Right of redemption No

Building and property details

Construction year 1952
Inauguration 1952
Floors 3
Lift No
Roof type Gable roof
Ventilation Natural ventilation
Energy certificate class F
Heating District heating
Building materials Brick, Concrete
Roof materials Concrete tile
Facade materials Concrete, Brickwork siding
Property reference number 167-002-0201-0009
Manager Karjalan Tilipalvelu Oy
Manager's contact info Tuomas Holopainen, 050 528 0217
Maintenance Joensuun Lähiöhuolto Oy
Lot area 27590.1 sq ft
Number of buildings 3
Terrain Gentle slope
Road Yes
Land ownership Own
Planning situation Detailed plan
Municipality engineering Water, Sewer, Electricity, District heating

Energy certificate class

F

Monthly fees

Maintenance 675 € / month (792.23 $)
Water 22 € / month (25.82 $) / person

Purchase costs

Transfer tax 1.5 %
Registration fees €89 ($104)

This is how the buying of your property starts

  1. Fill out the short form and we will arrange a meeting
  2. Our representative will contact you without delay and arrage a meeting.

Would you like to know more about this property?

An error occurred while trying to send the contact request. Please try again.

Loading

Thank you for your contact request. We'll contact you promptly!