Apartemento, Emännäntie 19
40740 Jyväskylä, Kortepohja
Por favor, póngase en contacto con el agente de ventas para más información sobre esta propiedad.
Precio de venta no comprometido
EUR 97,000 ($2,088,534)Habitaciones
4Dormitorios
3Baños
1Util
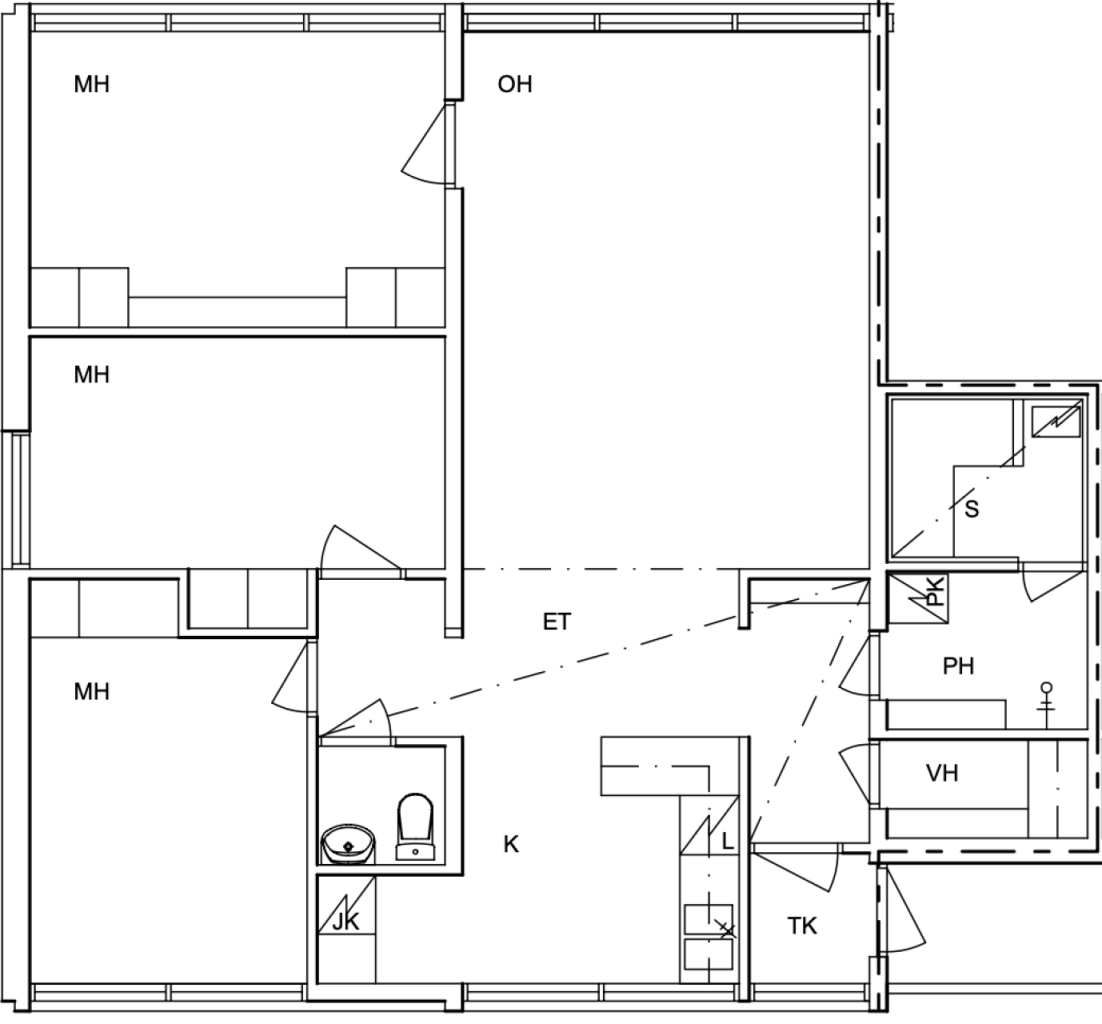
89 m²Detalles básicos
| Número de listado | 669919 |
|---|---|
| Precio de venta no comprometido | EUR 97,000 ($2,088,534) |
| Precio de venta | EUR 54,489 ($1,173,218) |
| Reparto de las responsabilidades | EUR 42,511 ($915,316) |
| La parte de los pasivos se puede pagar | Si |
| Habitaciones | 4 |
| Dormitorios | 3 |
| Baños | 1 |
| Baños | 1 |
| Util | 89 m² |
| Medidas verificadas | No |
| Medidas basadas en | Artículos de asociación |
| Suelo | 1 |
| Plantas en edificio | 1 |
| Estado | Bueno |
| Vacante desde | De acuerdo con el contrato |
| Aparcamiento | Plaza de aparcamiento con toma de corriente |
| Planta baja | Si |
| Espacios | Sauna |
| Almacenamientos | Vitrina, Vestidor, Almacenamiento al aire libre |
| Telecomunicaciones | Televisión por cable, Internet por cable |
| Materiales de suelos | Parquet, Suelo de vinilo |
| Superficies de pared | Pintura |
| Materiales de baño | Azulejos |
| Electrodomésticos | Horno eléctrico, Refrigerador congelador, Armarios, Campana, Lavavajillas |
| Equipamiento de baño | Duscha, Conexión para lavadora, Suelo radiante, Espacio para lavadora, Pared de ducha |
| Inspección de amianto | El edificio fue construido antes de 1994 y no se ha realizado una inspección de amianto. |
| Comparticiones | 712-800 |
Detalles de la propiedad y construcción
| Año de construcción | 1972 |
|---|---|
| Inauguración | 1972 |
| Plantas | 2 |
| Ascensor | No |
| Tipo de tejado | Tejado plano |
| Ventilación | Ventilación de extracción mecánica |
| Clase de certificado energético | E , 2018 |
| Calefacción | Calefacción urbana |
| Materiales de construcción | Hormigón |
| Materiales del tejado | Fieltro |
| Reformas |
Tuberías 2025 (Listo) Plan de reforma 2025 (Listo) Tuberías 2023 (Listo) Fachada 2022 (Listo) Áreas comunes 2020 (Listo) Techo 2020 (Listo) Fachada 2019 (Listo) Áreas comunes 2018 (Listo) Techo 2018 (Listo) Áreas comunes 2016 (Listo) Puertas 2015 (Listo) Jardín 2014 (Listo) Otros 2013 (Listo) Calefacción 2012 (Listo) Fachada 2010 (Listo) Ventilación 2007 (Listo) Tuberías de agua potable 2007 (Listo) Techo 2005 (Listo) Drenaje del subsuelo 2005 (Listo) Otros 2003 (Listo) Otros 2003 (Listo) Áreas comunes 2002 (Listo) |
| Zonas comunes | Trastero , Sauna |
| Gerente | REIM Isännöinti |
| Información de contacto del gerente | 0207438543 / arto.pollari@reim.fi |
| Mantenimiento | Huoltoyhtiö |
| Número de plazas de aparcamiento | 40 |
| Número de edificios | 6 |
| Terreno | Ladera |
| Calle | Si |
| Titularidad de los terrenos | Está en propiedad |
| Situación de planificación | Plan detallado |
| Ingeniería municipal | Agua, Alcantarilla, Electricidad, Calefacción urbana |
Clase de certificado energético
Detalles de la cooperativa de viviendas
| Nombre de cooperativa de viviendas | Asunto Oy Emännäntie 19 |
|---|---|
| Año de fundación | 1971 |
| Número de comparticiones | 2,888 |
| Candidad de apartamentos en edificio | 39 |
| Superficies de apartamentos | 2888 m² |
| Derecho de redención | No |
Servicios
| Esquí | 0.9 km |
|---|---|
| Parque | 0.1 km |
| Restaurante | 0.4 km |
| Guardería | 0.7 km |
| Tienda de comestibles | 0.5 km |
Acceso en transporte público
| Autobús | 0.3 km |
|---|
Cuotas mensuales
| Mantenimiento | 347.1 € / mes (7,473.51 $) |
|---|---|
| Cargo por gastos financieros | 252.23 € / mes (5,430.83 $) (estimación) |
| Telecomunicaciones | 4.5 € / mes (96.89 $) |
| Electricidad | 20 € / mes (430.63 $) (estimación) |
Costes de adquisición
| Impuesto de transferencia | 1.5 % |
|---|
Así comienza la compra de su propiedad
- Rellene el breve formulario y concertaremos una reunión.
- Nuestro representante se comunicará con usted sin demora y concertará una reunión.
¿Le gustaría saber más sobre esta propiedad?
Gracias por su solicitud de contacto. ¡Nos pondremos en contacto con usted lo antes posible!