Кондоминиум, Kesäläntie 17
92130 Raahe, Antinkangas
Ве молиме контактирајте го претставникот за продажба за повеќе детали за овој имот.
Неоптоварена продажна цена
58.000 € (3.571.250 ден.)Соби
2Спални соби
1Бањи
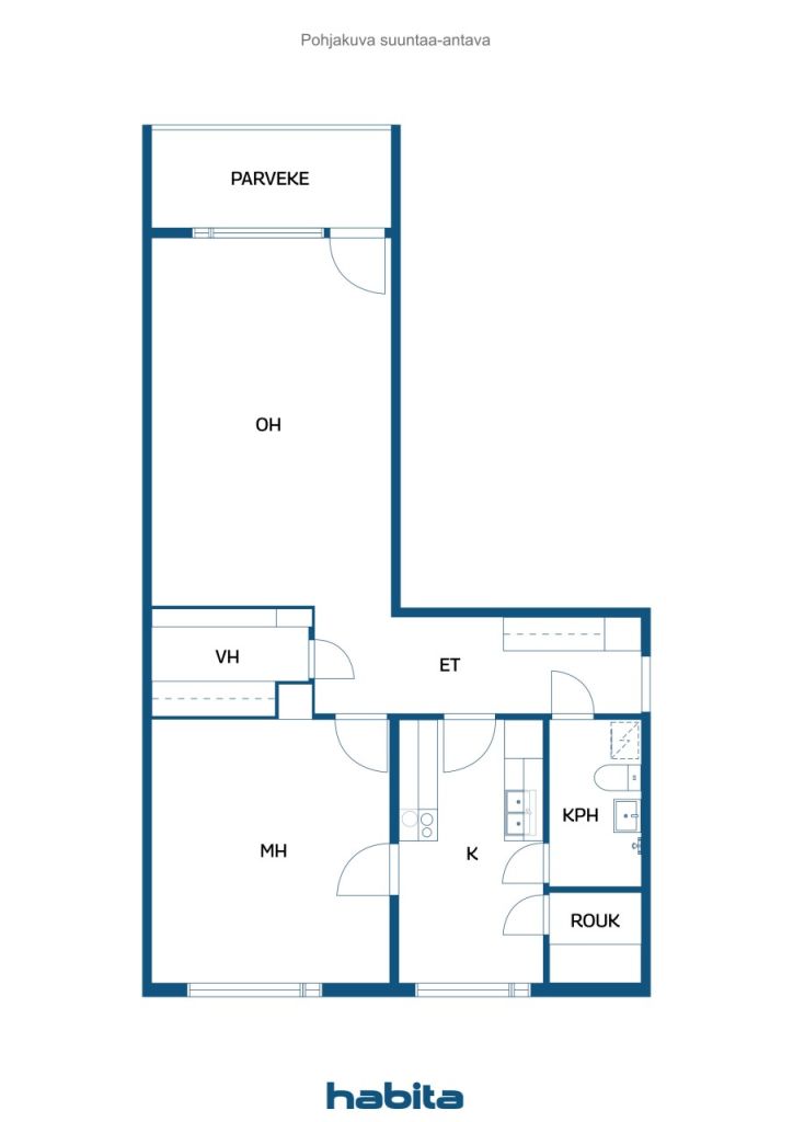
1Станбена површина
65 m²Основни детали
| Број на оглас | 669515 |
|---|---|
| Неоптоварена продажна цена | 58.000 € (3.571.250 ден.) |
| Продажна цена | 44.393 € (2.733.426 ден.) |
| Удел на обврските | 13.607 € (837.824 ден.) |
| Може да се исплати дел од обврските | Да |
| Соби | 2 |
| Спални соби | 1 |
| Бањи | 1 |
| Бањи со тоалет | 1 |
| Станбена површина | 65 m² |
| Мерењата се потврдени | Бр |
| Мерења врз основа на | Статут на здружение |
| Кат | 1 |
| Станбени подови | 1 |
| Состојба | Добро |
| Паркинг | Carport |
| Простори |
Дневна соба
Кујна Спална соба Бања Сауна Прозорец |
| Прегледи | Двор, Задниот двор, Преден двор, Соседството, Улица, Градот, Природата |
| Складирање | Кабинетот, Прозорец, Складирање на отворено |
| Телекомуникации | Интернет со оптички влакна, Антена |
| Подни површини | Ламинат |
| Ѕидни површини | Ѕидна хартија |
| Површини за бања | Плочка |
| Опрема за кујна | Електричен шпорет, Фрижидер за замрзнување, Кабинетрија, Кујнски аспиратор, Машина за миење садови |
| Опрема за бања | Туш, Поврзување на машината за перење, Подно греење, Простор за машина за перење, Биде туш, Потоне, Туш ѕид, Тоалетно седиште, Огледало |
| Истражување за азбест | Зградата е изградена пред 1994 година и не е извршено истражување на азбест. |
| Акции | 92709-98298 |
Детали за зграда и имот
| Година на градба | 1973 |
|---|---|
| Инаугурација | 1973 |
| Подови | 2 |
| Подигнете | Бр |
| Тип на покрив | Гејбл покрив |
| Вентилација | Природна вентилација |
| Фондацијата | Бетон |
| Класа на енергетски сертификат | Д, 2018 |
| Греење | Топлификација, Централно греење на вода, Радијатор |
| Градежни материјали | Тула |
| Покривни материјали | Лим |
| Материјали за фасада | Обвивка од тули |
| Реновирање |
План за реновирање 2025 (Готово) Друго 2025 (Готово) Цевководи 2024 (Готово) Брави 2022 (Готово) Фасада 2022 (Готово) Вентилација 2021 (Готово) Водоводни цевки 2018 (Готово) Греење 2014 (Готово) Балкони 2013 (Готово) Покрив 2012 (Готово) Водоводни цевки 2012 (Готово) Покрив 2011 (Готово) Телекомуникации 2011 (Готово) Фасада 2011 (Готово) Покрив 2009 (Готово) Фасада 2007 (Готово) Покрив 2006 (Готово) Windows 2004 (Готово) |
| Заеднички области | Барака за ѓубре |
| Референтен број на имот | 678-28-185-1, 678-28-187-1, 678-28-187-2 |
| Менаџер | Kodin Isännöinti Oy Raahe |
| Информации за контакт на менаџерот | Virve Hautamaa 010 739 5455 |
| Одржување | Raahen Talonhoito Oy |
| Површина на многу | 6971 m² |
| Број на згради | 6 |
| Теренот | Рамен |
| Патот | Да |
| Сопственост на земјиштето | Сопствени |
| Планска ситуација | Детален план |
| Општинско инженерство | Вода, Канализација, Електрична енергија, Топлификација |
Класа на енергетски сертификат
Детали за станбена задруга
| Име на станбена задруга | Asunto Oy Raahenantti |
|---|---|
| Година на основање | 1978 |
| Број на акции | 202.444 |
| Број на живеалишта | 41 |
| Површина на живеалишта | 2387 m² |
| Право на откуп | Бр |
Месечни давачки
| Одржување | 175,5 € / месец (10.806,11 ден) |
|---|---|
| Наплата за финансиски трошоци | 130 € / месец (8.004,53 ден) |
| Вода | 15 € / месец (923,6 ден) / личност |
| Паркинг простор | 8 € / месец (492,59 ден) |
Трошоци за купување
| Данок за трансфер | 1,5 % |
|---|---|
| Други трошоци | 89 € (5.480 ден.) |
Вака започнува купувањето на вашиот имот
- Пополнете го краткиот формулар и ќе договориме состанок
- Нашиот претставник ќе ве контактира без одлагање и ќе договори состанок.
Дали сакате да дознаете повеќе за овој имот?
Ви благодариме за вашето барање за контакт. Ќе ве контактираме веднаш!