Apartemento, Kaarlo Sarkian katu 7
02600 Espoo, Vermonniitty
NUEVO, 8 PISOS SUPERIORES, LISTO PARA MUDARSE, ¡BUENAS VISTAS!
Este apartamento de colores claros y bien mantenido, con líneas claras y una distribución sencilla, es muy luminoso, con ventanas que se abren en tres direcciones del aire y dan luz de la mañana a la noche. La combinación de baño, cuarto de servicio y sauna es una combinación ordenada y muy funcional en su conjunto, sin cuadrados desperdiciados. La combinación amplia y luminosa de sala de estar y cocina se adapta sin esfuerzo al grupo más grande. Los vendedores renovaron los electrodomésticos para adaptarlos a sus gustos en 2023.
Este es el único apartamento de este tipo de la empresa, que incluso está equipado con una gran terraza en la azotea. La bomba de calor de aire mantiene el apartamento adecuadamente fresco incluso en verano.
También puede llegar en coche gracias a las buenas conexiones de transporte (vía rápida a 350 m, autobús a 200 metros) y a los servicios, por ejemplo, el K-Supermarket, que sirve de tienda de conveniencia, está justo al lado y se puede llegar a Selloo a pie. UNA GRAN VENTAJA ES TENER SU PROPIA PARCELA, POR LO QUE LOS COSTES DE LA VIVIENDA SON RAZONABLES, INCLUSO ASEQUIBLES. Una empresa bien gestionada en la que las garantías de los constructores siguen siendo válidas. La empresa tiene para usted, por ejemplo, una sauna, una sala club, una lavandería doméstica y una terraza en la azotea del aparcamiento, donde puede alquilar jardineras para sus propias cosechas.
Este es un conjunto muy bonito y elegante para usted sin problemas de renovación. ¡Venga a visitar el lugar donde decidirá si esta es la casa que estaba buscando! Más información: p. 050 4200 134, pekka.nykanen@habita.com
Precio de venta no comprometido
EUR 448.000 ($521.512)Habitaciones
4Dormitorios
3Baños
1Util
85.5 m²Detalles básicos
| Número de listado | 670943 |
|---|---|
| Precio de venta no comprometido | EUR 448.000 ($521.512) |
| Precio de venta | EUR 448.000 ($521.512) |
| Habitaciones | 4 |
| Dormitorios | 3 |
| Baños | 1 |
| Baños | 1 |
| Baños con inodoro | 1 |
| Util | 85.5 m² |
| Medidas verificadas | No |
| Medidas basadas en | Artículos de asociación |
| Suelo | 8 |
| Plantas en edificio | 8 |
| Estado | Bueno |
| Vacante desde |
De acuerdo con el contrato
Un mes después de la transacción, se acordará la versión en la oferta de compra. |
| Aparcamiento | Aparcamiento en garaje |
| Planta alta | Si |
| Características | Bomba de aire caliente, Recuperación de calor |
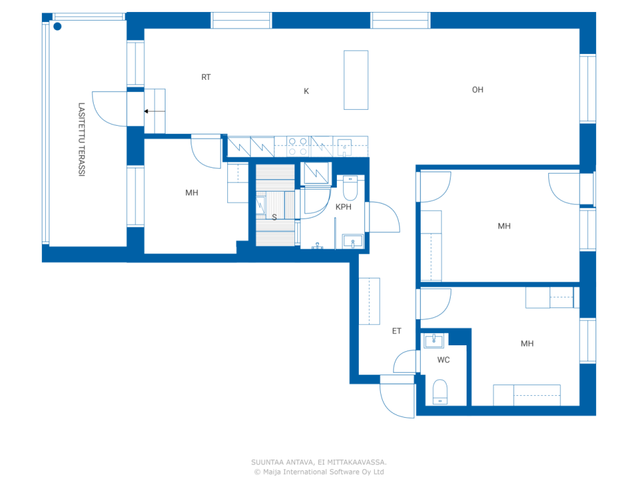
| Espacios |
Recibidor
Aseo Dormitorio Salón Cocina abierta Baño Sauna Balcón acristalado |
| Vistas | Jardin, Patio trasero, Jardin delantero, Patio interior, Vecinos, Calle, Cuidad, Aparcar |
| Almacenamientos | Vitrina, Almacenamiento en el sótano |
| Telecomunicaciones | Televisión por cable, Internet por cable |
| Materiales de suelos | Parquet |
| Superficies de pared | Pintura |
| Materiales de baño | Azulejos |
| Electrodomésticos | Cocina de inducción, Frigorífico, Frigorífico, Armarios, Campana, Lavavajillas, Horno separado, Horno microondas |
| Equipamiento de baño | Duscha, Conexión para lavadora, Suelo radiante, Suelos radiantes, Espacio para lavadora, Vitrina, Baño, Pared de ducha, Inodoro, Vitrina con espejo |
| Comparticiones | 37161-38015 |
| Descripción | ¡Impresionante y luminoso conjunto de 8 plantas! |
| Información adicional | Las acciones del aparcamiento número 326 (38050-38050) se venden en relación con la transacción de vivienda a un precio sin deudas de 8 000 euros. El precio incluye una estación de carga de 22 kWh (con una relación calidad-precio de 2.400€). Cuota de tratamiento 8 €/mes. La tarifa de carga de la electricidad ha sido de 16 sect/kWh (contrato Plugit Oy), que puede cambiar a medida que cambie el precio de la electricidad. |
Detalles de la propiedad y construcción
| Año de construcción | 2020 |
|---|---|
| Inauguración | 2020 |
| Plantas | 8 |
| Ascensor | Si |
| Tipo de tejado | Tejado plano |
| Ventilación | Ventilación mecánica |
| Clase de certificado energético | B , 2018 |
| Calefacción | Calefacción urbana, Calefacción de agua central |
| Materiales de construcción | Hormigón |
| Materiales del tejado | Tela asfáltica |
| Materiales de facada | Hormigon |
| Reformas |
Fachada 2025 (Listo) Plan de reforma 2024 (Próximamente disponible) Otros 2022 (Listo) |
| Zonas comunes | Trastero , Trastero, Sauna, Refugio, Trastero para secar comun, Trastero para biciletas, Club social, Cobertizo para basura, Plazas de aparcamiento, Solarium, Lavandería |
| Ref. | 49-51-351-3 |
| Gerente | Kontu Isännöinti Oy, Henrikki Tahvanainen |
| Información de contacto del gerente | p.010 739 8990, henrikki.tahvanainen@kontuoy.fi |
| Mantenimiento | Oiva Talotekniikka Oy p.020 710 9171 |
| Área de parcela | 1625 m² |
| Número de plazas de aparcamiento | 53 |
| Número de edificios | 2 |
| Terreno | Piso |
| Calle | Si |
| Titularidad de los terrenos | Está en propiedad |
| Situación de planificación | Plan detallado |
| Ingeniería municipal | Agua, Alcantarilla, Electricidad, Calefacción urbana |
Clase de certificado energético
Detalles de la cooperativa de viviendas
| Nombre de cooperativa de viviendas | Asunto Oy Espoon Proosa |
|---|---|
| Número de comparticiones | 38.071 |
| Candidad de apartamentos en edificio | 86 |
| Superficies de apartamentos | 3801.5 m² |
| Derecho de redención | No |
Servicios
| Restaurante | 0.6 km |
|---|---|
| Tienda de comestibles | 0.5 km |
| Centro comercial | 1.5 km |
| Colegio | 0.5 km |
| Guardería | 0.7 km |
Acceso en transporte público
| Tren | 1.1 km |
|---|---|
| Autobús | 0.4 km |
| Tranvía | 0.4 km |
Cuotas mensuales
| Mantenimiento | 333,45 € / mes (388,17 $) |
|---|---|
| Agua | 22 € / mes (25,61 $) / persona (estimación) |
| Plaza de aparcamiento | 8 € / mes (9,31 $) |
Costes de adquisición
| Impuesto de transferencia | 1,5 % |
|---|---|
| Notaría | EUR 89 ($104) |
Así comienza la compra de su propiedad
- Rellene el breve formulario y concertaremos una reunión.
- Nuestro representante se comunicará con usted sin demora y concertará una reunión.
¿Le gustaría saber más sobre esta propiedad?
Gracias por su solicitud de contacto. ¡Nos pondremos en contacto con usted lo antes posible!